Auction House / West Yorkshire

  • For Sale By Unconditional Online Auction
  • Guide Price* : £105,000
  • Auction Ended 24/09/2024
  • Lot 17

Flat 1&2 67 & 67A Harehills Road, Leeds, West Yorkshire, LS8 5HS

This mid terrace property is split into two flats and would be ideal for a buy to let investor. To the ground floor is a one bedroom flat in need of refurbishment, however is currently tenanted at £425pcm. It will be sold with tenants in situ. (contd...)

Description

This mid terrace property is split into two flats and would be ideal for a buy to let investor. To the ground floor is a one bedroom flat in need of refurbishment, however is currently tenanted at £425pcm. It will be sold with tenants in situ. (contd...)

This mid terrace property is split into two flats and would be ideal for a buy to let investor. To the ground floor is a one bedroom flat in need of refurbishment, however is currently tenanted at £425pcm. It will be sold with tenants in situ. To the first and second floor is a self contained two bedroom flat that was in the process of being refurbished and is sold vacant.

It's located in Harehills, a suburb 1.5 miles North of Leeds City Centre and is an extremely popular location for rentals. There are lots of local shops, schools and bus routes nearby with easy access into the city centre.

Interested parties should be aware that the ground floor flat has been served an enforcement notice and buyers are advised to do their own research in this regard. The vendor has begun the necessary works and reconfiguration since the photos were taken however there are no guarantees that this will be finished prior to completion.

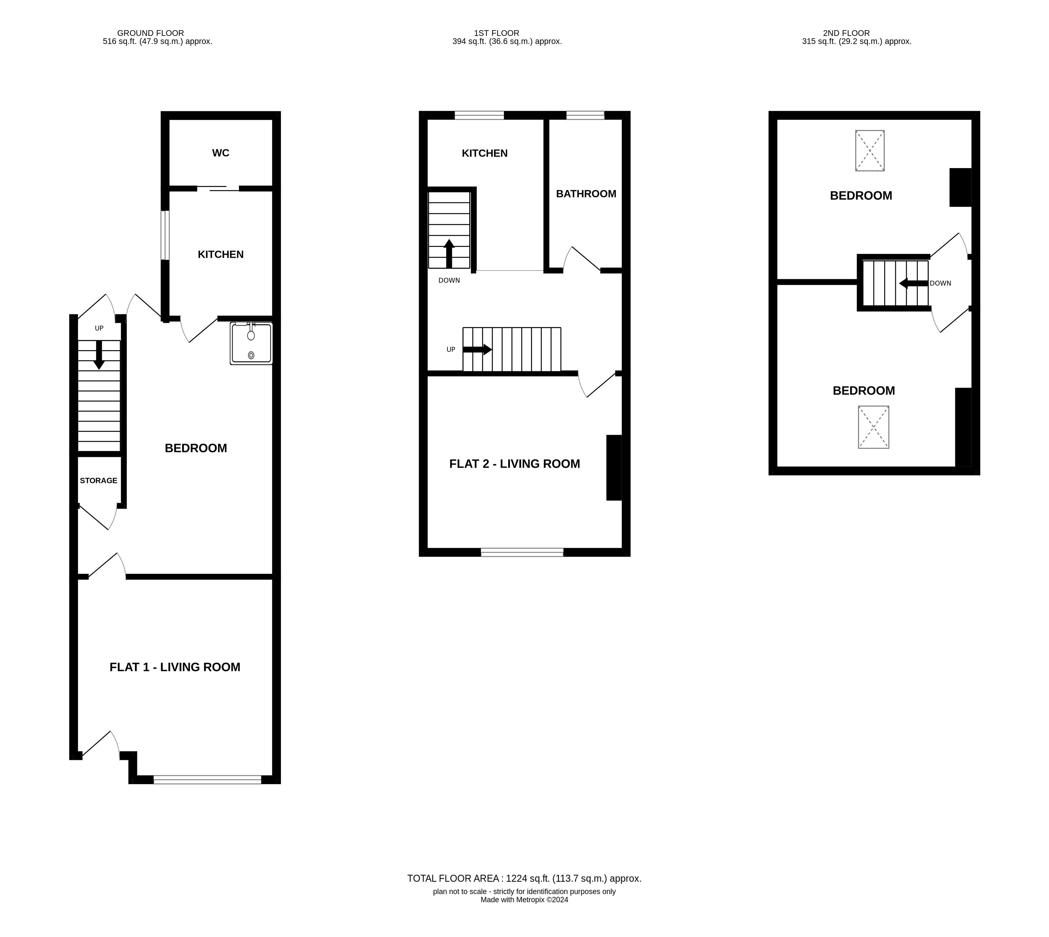
Ground Floor Flat 1 - Living room, kitchen, bedroom and wc.
First Floor Flat 2 - Living room, kitchen and shower room.
Second Floor Flat 2 - Two bedrooms.
ADDITIONAL INFORMATION
Council Tax Band A.
Tenure Freehold.
Charges & payments In addition to the deposit Administration Charge: £1,200 inc VAT.
Searches £300 inc VAT

Tenure: See Legal Pack

Tenure

Freehold

Lot Type

Residential

Important Notice to Prospective Buyers

We draw your attention to the Special Conditions of Sale within the Legal Pack, referring to other charges in addition to the purchase price which may become payable. Such costs may include Search Fees, reimbursement of Sellers costs and Legal Fees, and Transfer Fees amongst others.

Administration Charge

Administration Charge is a non-refundable £1,200 inc VAT payable on the fall of the virtual gavel.

Disbursements

Searches: £300 inc VAT payable on the fall of the virtual gavel.

Loading the bidding panel...

* Guide | £105,000
  • Terraced House
  • Tenure: Freehold
  • Unconditional (Immediate Exchange)

Call the team on 0113 393 3482 for more information

Disclaimer: The map preview provided above is for general guidance only and may not accurately reflect the exact location or surrounding buildings. Prospective buyers and interested parties are strongly advised to independently verify the precise location and surroundings before bidding.

Note

  1. MONEY LAUNDERING REGULATIONS: Intending purchasers will be asked to produce identification documentation at a later stage and we would ask for your co-operation in order that there will be no delay in agreeing the sale.
  2. General : While we endeavour to make our sales particulars fair, accurate and reliable, they are only a general guide to the property and, accordingly, if there is any point which is of particular importance to you, please contact the office and we will be pleased to check the position for you, especially if you are contemplating travelling some distance to view the property.
  3. Measurements: These approximate room sizes are only intended as general guidance. You must verify the dimensions carefully before ordering carpets or any built-in furniture.
  4. Services: Please note we have not tested the services or any of the equipment or appliances in this property, accordingly we strongly advise prospective buyers to commission their own survey or service reports before finalising their offer to purchase.
  5. THESE PARTICULARS ARE ISSUED IN GOOD FAITH BUT DO NOT CONSTITUTE REPRESENTATIONS OF FACT OR FORM PART OF ANY OFFER OR CONTRACT. THE MATTERS REFERRED TO IN THESE PARTICULARS SHOULD BE INDEPENDENTLY VERIFIED BY PROSPECTIVE BUYERS OR TENANTS. NEITHER AUCTION HOUSE NOR ANY OF ITS EMPLOYEES OR AGENTS HAS ANY AUTHORITY TO MAKE OR GIVE ANY REPRESENTATION OR WARRANTY WHATEVER IN RELATION TO THIS PROPERTY.