Auction House / Hull & East Yorkshire

  • For Sale By Unconditional Online Auction
  • Guide Price* : £180,000 - £200,000
  • Auction Ended 17/09/2024
  • Lot 11

46 Main Street, Paull, Hull, East Yorkshire, HU12 8AL

A superbly modernised period, end-terraced house offering stunning views of the Humber Estuary and amazing sunsets.

Description

If you are looking for something a bit different this superbly modernised period end terraced house offers well proportioned accommodation with an emphasis on entertaining space. With the Humber Estuary located immediately to the rear there are stunning views available, particularly of sunsets. Paull is a charming village offering rural living that is brilliantly located for everything Hull has to offer in terms of work and leisure.

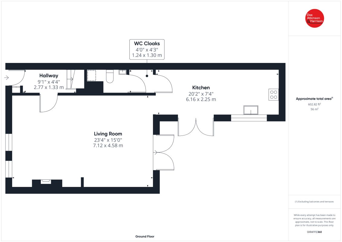
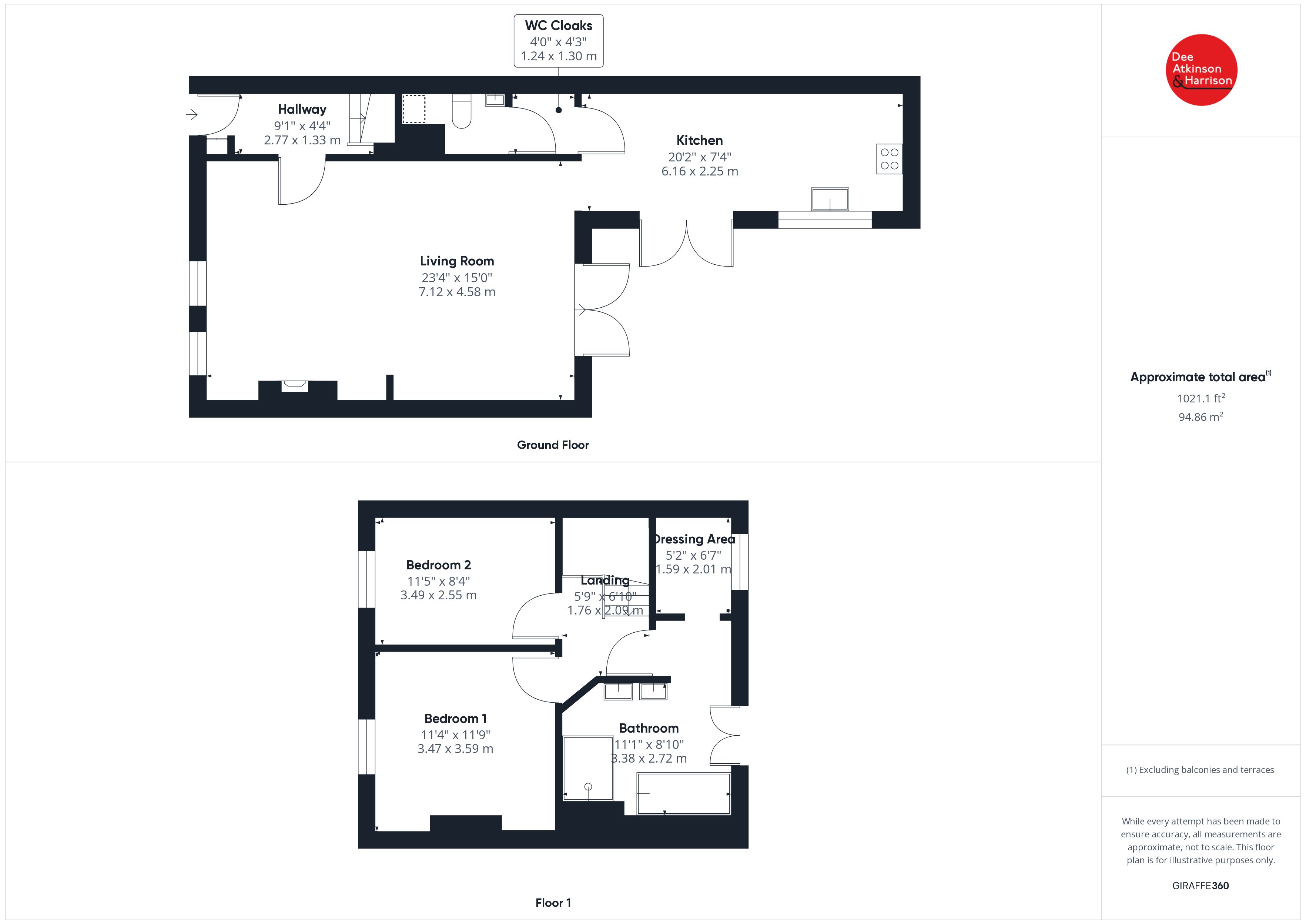
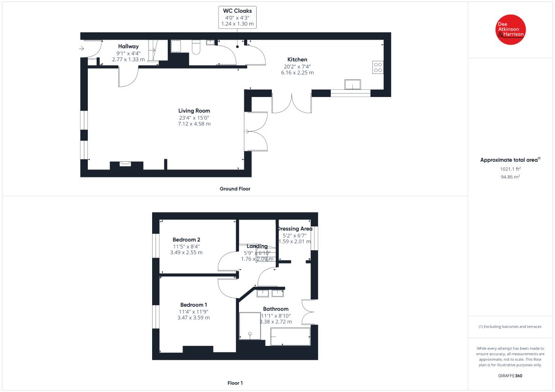
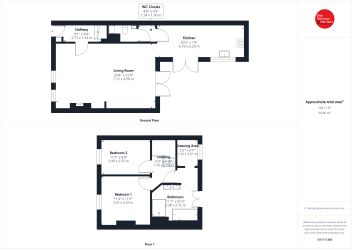
Accessed via an entrance hall with tiled floor that leads to a spacious dual aspect living room with a rustic exposed brick fireplace providing a stylish focal point. French windows open onto the rear garden. There is a good sized breakfast kitchen with a range of modern gloss fitted units with a hardwood worktop and stylishly tiled walls. More French windows also open onto the garden so the ground floor blends well with the garden offering great guest flow when entertaining. There is a WC cloaks located under the stairs. To the first floor are two double bedrooms and a sensational modern bathroom suite running the full width of the house. The bathroom area provides twin hand basins, a wet room style shower enclosure, free standing oval bath and a wall hung WC. Stylish marble style tiling to the floors and walls gives everything a luxurious feel, enhanced by the French windows and Juliet balcony that provide a superb outlook. There is an open plan fitted dressing area off the bathroom.

The landscaped rear garden has been laid with artificial lawn for ease of maintenance.

The accommodation is gas centrally heated and has uPVC double glazing throughout which with the modern lighting and fitments ensuring the home is a comfortable place to retreat to. Our 360-degree tour: 360 tour! will allow you to experience what the property offers but is no substitute for a real viewing of the house. The property is offered with vacant possession and no forward chain.

The area of the garden to the right side of the property is being retained by the current owner and planning permissions are being sought for a separate dwelling. It won't be attached to this one.

Tenure

Freehold. Vacant possession upon completion.

Council Tax Band

A

Lot Type

Residential

EPC Rating

C

VAT

VAT is not applicable

Important Notice to Prospective Buyers

We draw your attention to the Special Conditions of Sale within the Legal Pack, referring to other charges in addition to the purchase price which may become payable. Such costs may include Search Fees, reimbursement of Sellers costs and Legal Fees, and Transfer Fees amongst others.

Buyers Premium

The purchaser will be required to pay a buyer's premium of £600 (£500 plus VAT) in addition to the purchase price of the property.

Administration Charge

The purchaser will be required to pay an administration charge of 0.3% of the purchase price (0.25% plus VAT), subject to a minimum charge of £900 (£750 plus VAT), in addition to the purchase price of the property.

Disbursements

Please see the legal pack for any disbursements listed that may become payable by the purchaser on completion.

Loading the bidding panel...

* Guide | £180,000 - £200,000
  • 3 Bedrooms
  • Tenure: Freehold. Vacant possession upon completion.
  • Unconditional (Immediate Exchange)

Call the team on 0845 400 9900 for more information

Related Documents

Disclaimer: The map preview provided above is for general guidance only and may not accurately reflect the exact location or surrounding buildings. Prospective buyers and interested parties are strongly advised to independently verify the precise location and surroundings before bidding.

Note

  1. MONEY LAUNDERING REGULATIONS: Intending purchasers will be asked to produce identification documentation at a later stage and we would ask for your co-operation in order that there will be no delay in agreeing the sale.
  2. General : While we endeavour to make our sales particulars fair, accurate and reliable, they are only a general guide to the property and, accordingly, if there is any point which is of particular importance to you, please contact the office and we will be pleased to check the position for you, especially if you are contemplating travelling some distance to view the property.
  3. Measurements: These approximate room sizes are only intended as general guidance. You must verify the dimensions carefully before ordering carpets or any built-in furniture.
  4. Services: Please note we have not tested the services or any of the equipment or appliances in this property, accordingly we strongly advise prospective buyers to commission their own survey or service reports before finalising their offer to purchase.
  5. THESE PARTICULARS ARE ISSUED IN GOOD FAITH BUT DO NOT CONSTITUTE REPRESENTATIONS OF FACT OR FORM PART OF ANY OFFER OR CONTRACT. THE MATTERS REFERRED TO IN THESE PARTICULARS SHOULD BE INDEPENDENTLY VERIFIED BY PROSPECTIVE BUYERS OR TENANTS. NEITHER AUCTION HOUSE NOR ANY OF ITS EMPLOYEES OR AGENTS HAS ANY AUTHORITY TO MAKE OR GIVE ANY REPRESENTATION OR WARRANTY WHATEVER IN RELATION TO THIS PROPERTY.