Auction House / South Yorkshire

  • For Sale By Unconditional Online Auction
  • Guide Price* : £29,000 - £39,000
  • Auction Ended 20/08/2024

Development Land Adjacent to 2 Brynteg Cottages Tylorstown, Ferndale, Mid Glamorgan, CF43 3DN

Register - auctionhouse.co.uk/southyorkshire

Description

Register - auctionhouse.co.uk/southyorkshire

FOR SALE VIA NATIONAL ONLINE AUCTION. BIDDING OPENS ON MONDAY 19TH AUGUST AT 1PM AND CLOSES TUESDAY 20TH AUGUST FROM 1PM. REGISTER TO BID!

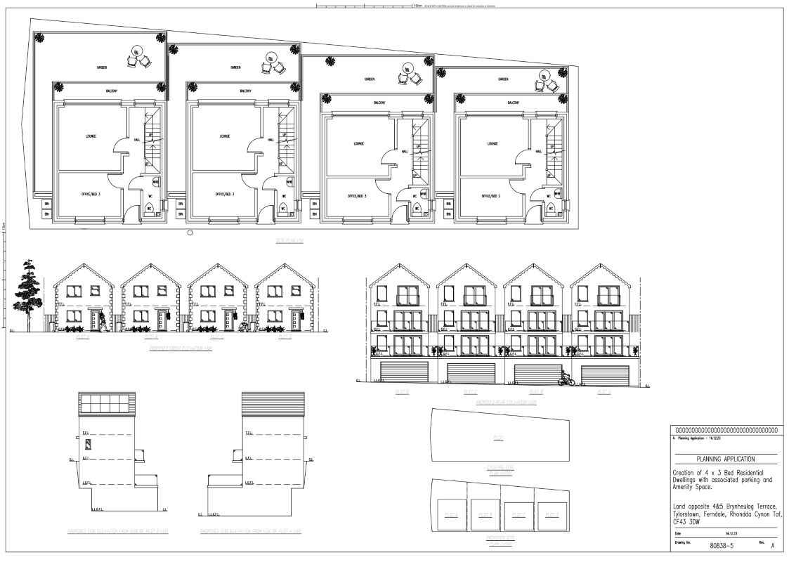
Auction House are delighted to offer a prime plot of land in the sought-after Rhondda Valley, complete with approved planning permission. Located in Tylorstown, this plot is perfect for developers or builders looking for a lucrative project.

Key Features:
- Approved Plans: The land comes with approved plans for four, three-bedroom detached houses. These houses feature:
- Lounge
- Open Plan Modern Kitchen Diner
- Three Bedrooms
- Family Bathroom
- Cloakroom/Utility
- En suites
- Rear Gardens
- Double Garages

- Investment Potential: The end values for these properties are expected to be around £900,000, presenting a fantastic investment opportunity.
- Flexibility: If the approved plans do not meet your needs, there is a range of alternative design possibilities to explore. (i.e. 4 to 5 terraced houses).
- Location: The plot is in a fantastic location with far-reaching views and a village feel. Tylorstown in Rhondda Valley is close to:
- Local amenities in surrounding villages such as Ferndale, Penrhys, Pontygwaith and Stanleytown.
- Well-regarded local schools
- Great transport links
- Numerous routes and walking spots
This plot of land offers an excellent opportunity to invest in a project with great potential in a beautiful and well-connected area.

Planning ref: 23/1425/10
Please contact Rhondda Cynan Taff Local Authority for further information
Tenure – Believed to be Freehold (See legal pack)
Council Tax Band - TBC

Tenure: See Legal Pack

Important Notice to Prospective Buyers

We draw your attention to the Special Conditions of Sale within the Legal Pack, referring to other charges in addition to the purchase price which may become payable. Such costs may include Search Fees, reimbursement of Sellers costs and Legal Fees, and Transfer Fees amongst others.

Buyers Premium

Buyer's Premium is a non-refundable £1,200 inc VAT, payable upon the fall of the virtual gavel.

Administration Charge

Administration Charge is a non-refundable £1,200 inc VAT payable on the fall of the virtual gavel.

Loading the bidding panel...

* Guide | £29,000 - £39,000
  • Unconditional (Immediate Exchange)

Call the team on 0114 223 0777 for more information

Disclaimer: The map preview provided above is for general guidance only and may not accurately reflect the exact location or surrounding buildings. Prospective buyers and interested parties are strongly advised to independently verify the precise location and surroundings before bidding.

Note

  1. MONEY LAUNDERING REGULATIONS: Intending purchasers will be asked to produce identification documentation at a later stage and we would ask for your co-operation in order that there will be no delay in agreeing the sale.
  2. General : While we endeavour to make our sales particulars fair, accurate and reliable, they are only a general guide to the property and, accordingly, if there is any point which is of particular importance to you, please contact the office and we will be pleased to check the position for you, especially if you are contemplating travelling some distance to view the property.
  3. Measurements: These approximate room sizes are only intended as general guidance. You must verify the dimensions carefully before ordering carpets or any built-in furniture.
  4. Services: Please note we have not tested the services or any of the equipment or appliances in this property, accordingly we strongly advise prospective buyers to commission their own survey or service reports before finalising their offer to purchase.
  5. THESE PARTICULARS ARE ISSUED IN GOOD FAITH BUT DO NOT CONSTITUTE REPRESENTATIONS OF FACT OR FORM PART OF ANY OFFER OR CONTRACT. THE MATTERS REFERRED TO IN THESE PARTICULARS SHOULD BE INDEPENDENTLY VERIFIED BY PROSPECTIVE BUYERS OR TENANTS. NEITHER AUCTION HOUSE NOR ANY OF ITS EMPLOYEES OR AGENTS HAS ANY AUTHORITY TO MAKE OR GIVE ANY REPRESENTATION OR WARRANTY WHATEVER IN RELATION TO THIS PROPERTY.