Auction House / Hull & East Yorkshire

  • For Sale By Unconditional Online Auction
  • Guide Price* : £85,000
  • Auction Ended 25/06/2024
  • Lot 30

4 Brickyard Cottages, North Ferriby, East Yorkshire, HU14 3AD

A refurbished two-bedroom mid-terrace house in an excellent location. **360 VIRTUAL TOUR AVAILABLE**

Viewing Details

Strictly by appointment through Auction House Hull & East Yorkshire on 0845 400 9900.
auctionhouse.co.uk/hullandeastyorkshire

Location

The pretty village of North Ferriby lies approximately seven miles to the west of the centre of Hull. Within 10 minutes driving time, there are 4 local golf courses, fishing ponds and a sailing club & Post Office. First-class road and rail connections are links into the A63 dual carriageway which lies approximately one mile to the west; there is a 5 min walk to a mainline British Rail Station.

Description

Centrally heated and double-glazed, this two-bedroom, mid-terrace cottage previously let to professionals has been an excellent investment property for the past 27 years. Ideally situated close to the delightful Ferriby foreshore and popular Riverside Walk Way & Café, it has excellent local amenities - village hall and pub and shops; a library; steepled church; primary school; and sporting/playground facilities. The property is considered capable of achieving a rental income of between £650 and £675 pcm and would make an excellent addition to any residential portfolio.

Unlike the neighbouring property that has recently been offered for sale and still requires significant reinstation, the ground floor of this cottage has just been fully renovated with a new kitchen ( and appliances), new bathroom fittings and redecoration, and new floor coverings.

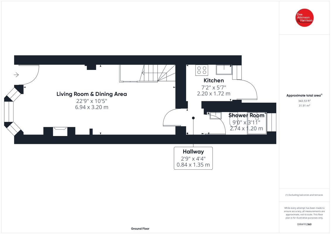
Accommodation

Ground Floor
Porch
Lounge
The living area has a character fireplace, bay window, double radiator, and TV aerial point. It is open to the Dining Area and has an under-stairs cupboard, double radiator, and staircase leading off.
Kitchen
It includes a range of new high-gloss floor and wall cabinets with complementive worktops and tiling, a stainless steel sink with mixer tap, a free-standing oven, gas hob, with extractor, an integrated microwave oven, fridge/freezer, plumbing for an automatic washing machine, a uPVC double-glazed rear entrance door, and a single radiator.
Shower Room
It includes an electric shower with large shower tray & curtain/rod; vanity wash hand basin with mixer tap; wall cupboard with double door mirrors, low-level w.c., fully tiled walls, and an extractor fan and window.
First Floor Landing Bedroom 1
With single radiator and coving to the ceiling. Double bed, chest of drawers, wardrobe and wall shelves.
Bedroom 2
With overstairs cupboard housing the wall mounted gas fired central heating boiler.

Loft: Recently insulated.

Exterior

Outside
To the front of the property is a small forecourt. To the rear is a small yard with pedestrian & bins access and good sized storage unit with connected electric power. Over door sensor lamp.

Tenure

Freehold

Note

Agents Note
Buyers should note that this property has recently been the subject of water damage, which, we are informed, was not caused by natural causes but by a fault with Yorkshire Water that has now been rectified at Yorkshire Water’s expense. The agents have not seen full details of the case; therefore, the purchaser must satisfy themselves as to the details in this statement, of reasons of “Human error”, not natural causes.

Council Tax Band

A

Lot Type

Residential Investments

EPC Rating

C

EPC Rating

C(71)

Important Notice to Prospective Buyers

We draw your attention to the Special Conditions of Sale within the Legal Pack, referring to other charges in addition to the purchase price which may become payable. Such costs may include Search Fees, reimbursement of Sellers costs and Legal Fees, and Transfer Fees amongst others.

Buyers Premium

£600 (£500 plus VAT) in addition to the purchase price of the property.

Administration Charge

£900 (£750 plus VAT) in addition to the purchase price of the property.

Disbursements

Please see the legal pack for any disbursements listed that may become payable by the purchaser on completion.

Loading the bidding panel...

* Guide | £85,000
  • 2 Bedrooms
  • Tenure: Freehold
  • Unconditional (Immediate Exchange)

Call the team on 0845 400 9900 for more information

Related Documents

Disclaimer: The map preview provided above is for general guidance only and may not accurately reflect the exact location or surrounding buildings. Prospective buyers and interested parties are strongly advised to independently verify the precise location and surroundings before bidding.

Note

  1. MONEY LAUNDERING REGULATIONS: Intending purchasers will be asked to produce identification documentation at a later stage and we would ask for your co-operation in order that there will be no delay in agreeing the sale.
  2. General : While we endeavour to make our sales particulars fair, accurate and reliable, they are only a general guide to the property and, accordingly, if there is any point which is of particular importance to you, please contact the office and we will be pleased to check the position for you, especially if you are contemplating travelling some distance to view the property.
  3. Measurements: These approximate room sizes are only intended as general guidance. You must verify the dimensions carefully before ordering carpets or any built-in furniture.
  4. Services: Please note we have not tested the services or any of the equipment or appliances in this property, accordingly we strongly advise prospective buyers to commission their own survey or service reports before finalising their offer to purchase.
  5. THESE PARTICULARS ARE ISSUED IN GOOD FAITH BUT DO NOT CONSTITUTE REPRESENTATIONS OF FACT OR FORM PART OF ANY OFFER OR CONTRACT. THE MATTERS REFERRED TO IN THESE PARTICULARS SHOULD BE INDEPENDENTLY VERIFIED BY PROSPECTIVE BUYERS OR TENANTS. NEITHER AUCTION HOUSE NOR ANY OF ITS EMPLOYEES OR AGENTS HAS ANY AUTHORITY TO MAKE OR GIVE ANY REPRESENTATION OR WARRANTY WHATEVER IN RELATION TO THIS PROPERTY.