Auction House / East Anglia

  • For Sale By Unconditional Online Auction
  • Guide Price* : £300,000
  • Auction Ended 25/06/2024
  • Lot 24

186 North Walsham Road, Norwich, Norfolk, NR6 7QW

FOR SALE BY ONLINE AUCTION ON 25TH JUNE 2024

Description

FOR SALE BY ONLINE AUCTION ON 25TH JUNE 2024

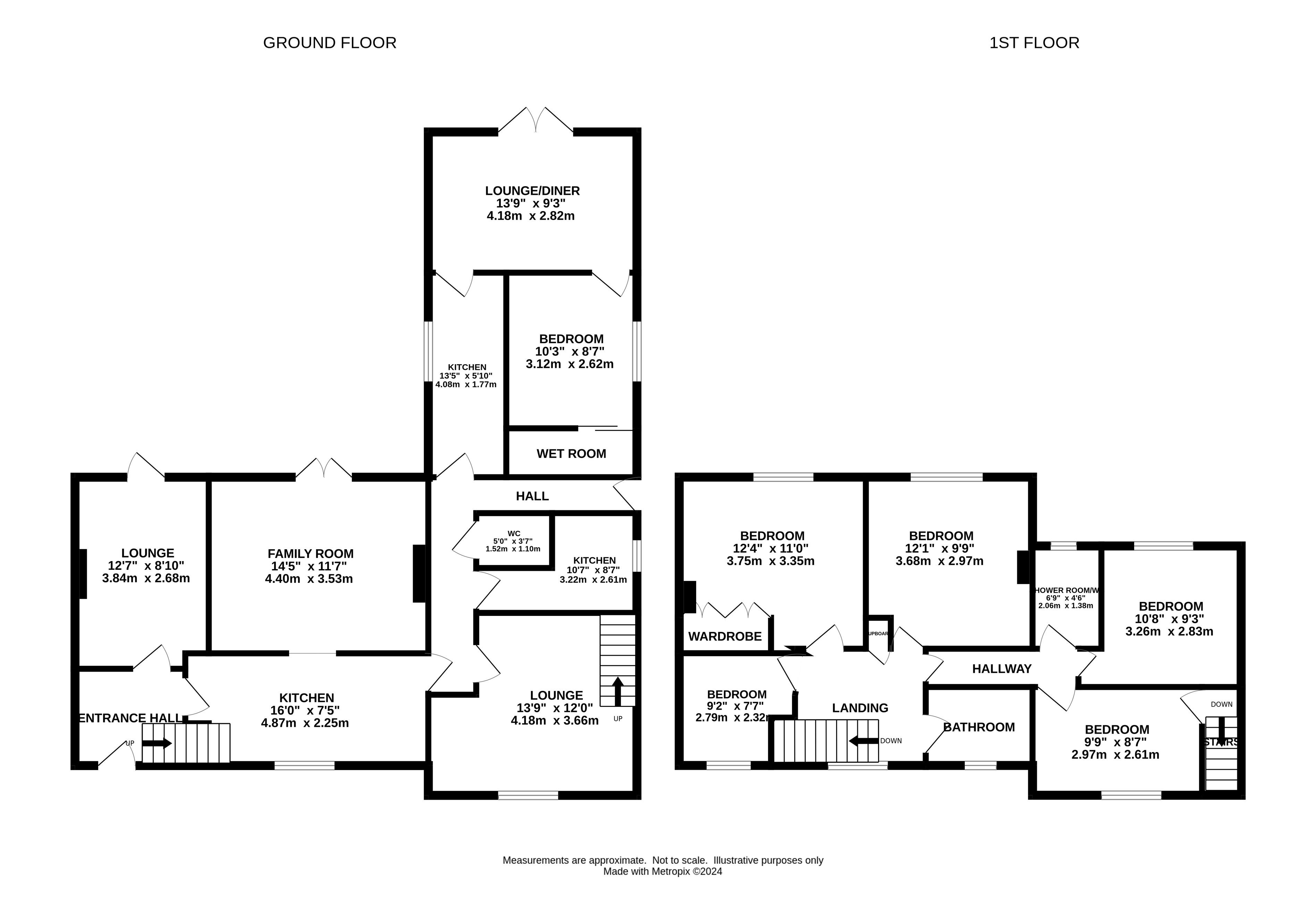
A three bedroom house with one bedroom ground floor annex and adjoining two bedroom townhouse

This ex local authority semi detached house has been considerably extended to provide an additional one and two bedroom annexe. Each unit could have independent access, or combined, it provides extensive family living accommodation. If let, the property could provide a significant investment income. The property does require some updating but benefits from sealed unit double glazing and gas fired central heating all set within large secluded gardens.

Currently the combined accommodation includes six bedrooms, four bathrooms and four reception rooms. There is ample off road parking and the house benefits from being located in a highly popular residential suburb with good access to a wide range of shops, schools and public transport.

Accommodation House: Hall, lounge, dining room, kitchen, landing, three bedrooms, bathroom
Annex 1: Lounge, kitchen, two bedrooms, bathroom
Annex 2: Hall, lounge, kitchen, bedroom, bathroom
Outside Open parking area to front, large rear garden
Council Tax Band 186 North Walsham Road, NR6 7QW - C
Annexe, 186 North Walsham Road, NR6 7QW - A

Tenure: Freehold

Important Notice to Prospective Buyers

We draw your attention to the Special Conditions of Sale within the Legal Pack, referring to other charges in addition to the purchase price which may become payable. Such costs may include Search Fees, reimbursement of Sellers costs and Legal Fees, and Transfer Fees amongst others.

Buyers Premium

£600 inc VAT payable on exchange of contracts

Administration Charge

Administration Charge is a non-refundable £1,200 inc VAT payable on the fall of the virtual gavel.

Loading the bidding panel...

* Guide | £300,000
  • 6 Bedrooms
  • Unconditional (Immediate Exchange)

Call the team on 01603 505 100 for more information

Related Documents

Disclaimer: The map preview provided above is for general guidance only and may not accurately reflect the exact location or surrounding buildings. Prospective buyers and interested parties are strongly advised to independently verify the precise location and surroundings before bidding.

Note

  1. MONEY LAUNDERING REGULATIONS: Intending purchasers will be asked to produce identification documentation at a later stage and we would ask for your co-operation in order that there will be no delay in agreeing the sale.
  2. General : While we endeavour to make our sales particulars fair, accurate and reliable, they are only a general guide to the property and, accordingly, if there is any point which is of particular importance to you, please contact the office and we will be pleased to check the position for you, especially if you are contemplating travelling some distance to view the property.
  3. Measurements: These approximate room sizes are only intended as general guidance. You must verify the dimensions carefully before ordering carpets or any built-in furniture.
  4. Services: Please note we have not tested the services or any of the equipment or appliances in this property, accordingly we strongly advise prospective buyers to commission their own survey or service reports before finalising their offer to purchase.
  5. THESE PARTICULARS ARE ISSUED IN GOOD FAITH BUT DO NOT CONSTITUTE REPRESENTATIONS OF FACT OR FORM PART OF ANY OFFER OR CONTRACT. THE MATTERS REFERRED TO IN THESE PARTICULARS SHOULD BE INDEPENDENTLY VERIFIED BY PROSPECTIVE BUYERS OR TENANTS. NEITHER AUCTION HOUSE NOR ANY OF ITS EMPLOYEES OR AGENTS HAS ANY AUTHORITY TO MAKE OR GIVE ANY REPRESENTATION OR WARRANTY WHATEVER IN RELATION TO THIS PROPERTY.