Auction House / East Anglia

  • For Sale By Unconditional Online Auction
  • Guide Price* : £70,000
  • Auction Ended 08/08/2019
  • Lot 9

3 March Road Guyhirn, Wisbech, Cambridgeshire, PE13 4DA

FOR SALE BY ON-LINE AUCTION ON THURSDAY 8TH AUGUST 2019


Description

A three bedroom semi detached chalet house in need of renovation with open views to the rear

The property has accommodation on two levels and is offered with vacant possession.

Guyhirn is situated between Peterborough and Wisbech on the A47 both offering facilities with a main line rail link at Peterborough into London Kings Cross. The village offers a garage with a shop.


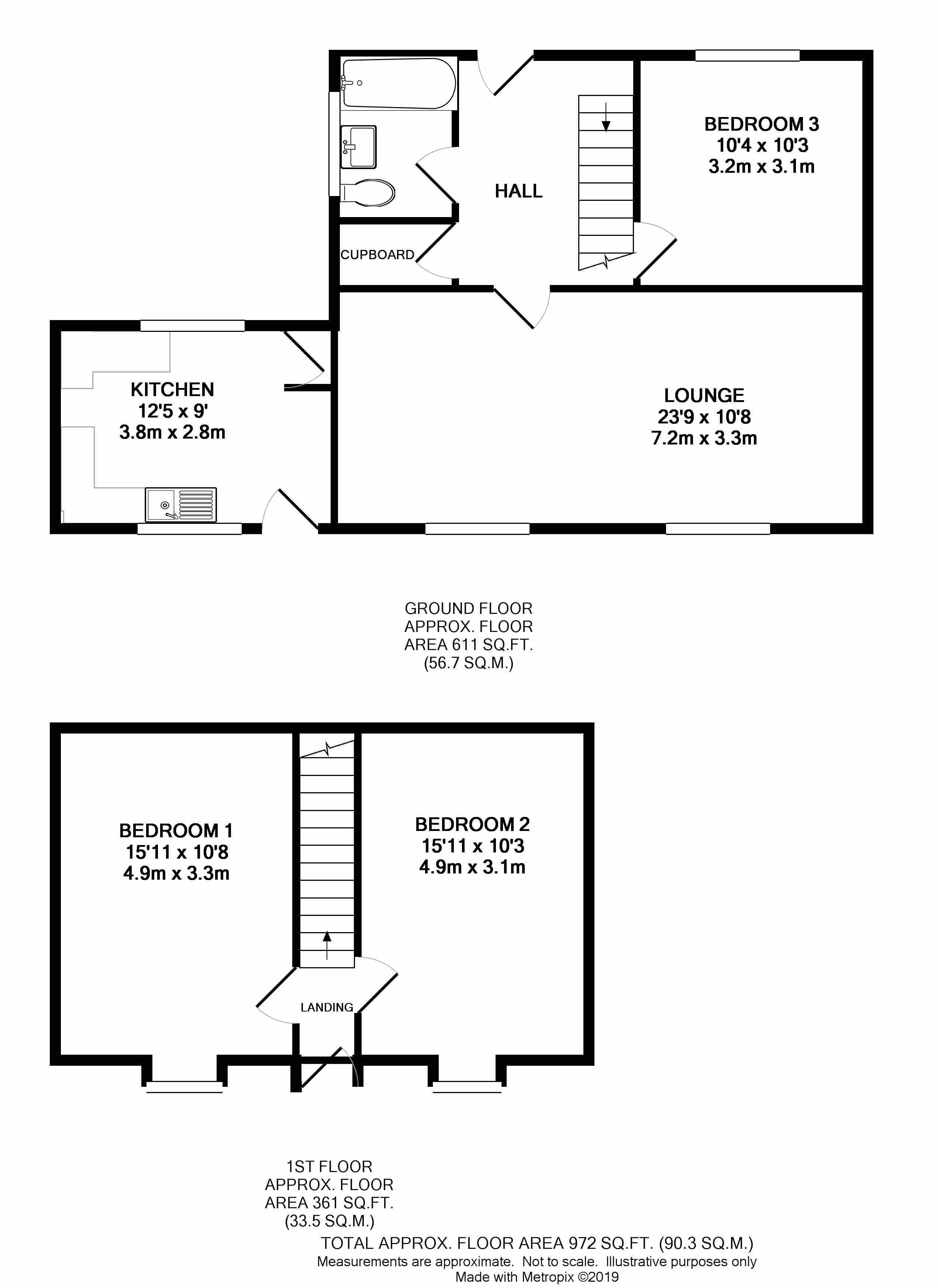
Ground Floor

Hall, lounge, kitchen, bedroom 3, bathroom


First Floor

Two bedrooms


Outside

Gardens to front and rear and parking to front.


Note

The property is of non traditional construction.

Additional Fees
Administration Charge: £1,200.00
Disbursements: Please see the legal pack for any disbursements listed that may become payable by the purchaser on completion

Important Notice to Prospective Buyers

We draw your attention to the Special Conditions of Sale within the Legal Pack, referring to other charges in addition to the purchase price which may become payable. Such costs may include Search Fees, reimbursement of Sellers costs and Legal Fees, and Transfer Fees amongst others.

Administration Charge

Administration Charge is a non-refundable £1,200 inc VAT payable on the fall of the virtual gavel.

Loading the bidding panel...

* Guide | £70,000
  • Chalet
  • 3 Bedrooms
  • Unconditional (Immediate Exchange)

Call the team on 01603 505 100 for more information

Related Documents

Disclaimer: The map preview provided above is for general guidance only and may not accurately reflect the exact location or surrounding buildings. Prospective buyers and interested parties are strongly advised to independently verify the precise location and surroundings before bidding.

Note

  1. MONEY LAUNDERING REGULATIONS: Intending purchasers will be asked to produce identification documentation at a later stage and we would ask for your co-operation in order that there will be no delay in agreeing the sale.
  2. General : While we endeavour to make our sales particulars fair, accurate and reliable, they are only a general guide to the property and, accordingly, if there is any point which is of particular importance to you, please contact the office and we will be pleased to check the position for you, especially if you are contemplating travelling some distance to view the property.
  3. Measurements: These approximate room sizes are only intended as general guidance. You must verify the dimensions carefully before ordering carpets or any built-in furniture.
  4. Services: Please note we have not tested the services or any of the equipment or appliances in this property, accordingly we strongly advise prospective buyers to commission their own survey or service reports before finalising their offer to purchase.
  5. THESE PARTICULARS ARE ISSUED IN GOOD FAITH BUT DO NOT CONSTITUTE REPRESENTATIONS OF FACT OR FORM PART OF ANY OFFER OR CONTRACT. THE MATTERS REFERRED TO IN THESE PARTICULARS SHOULD BE INDEPENDENTLY VERIFIED BY PROSPECTIVE BUYERS OR TENANTS. NEITHER AUCTION HOUSE NOR ANY OF ITS EMPLOYEES OR AGENTS HAS ANY AUTHORITY TO MAKE OR GIVE ANY REPRESENTATION OR WARRANTY WHATEVER IN RELATION TO THIS PROPERTY.