Auction House / Cheshire, Staffordshire & Shropshire

  • For Sale By Unconditional Online Auction
  • Guide Price* : £550,000
  • Auction Ended 03/06/2024
  • Lot 31

42 Hale Road, Altrincham, Cheshire, WA14 2EX

FOR SALE VIA ONLINE UNCONDITIONAL AUCTION. BIDDING OPENS MONDAY 3rd JUNE & CLOSES TUESDAY 4thJUNE.

Description

FOR SALE VIA ONLINE UNCONDITIONAL AUCTION. BIDDING OPENS MONDAY 3rd JUNE & CLOSES TUESDAY 4th JUNE.

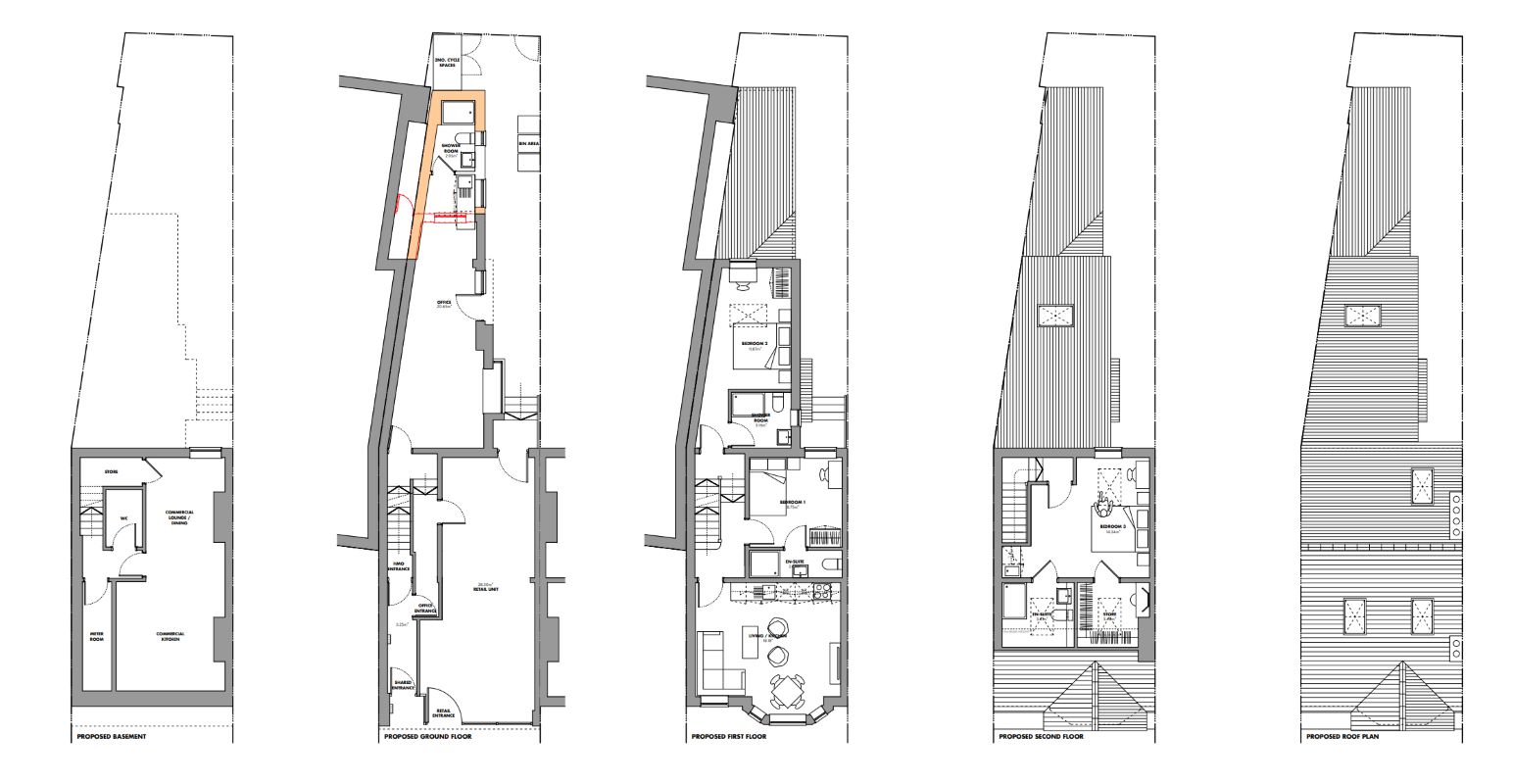
Boasting a luxurious finish throughout following a scheme of renovation, this stunning mixed use premises is situated in the affluent suburb of Hale, to the South of Manchester.

A desirable location, Hale is an affluent South Manchester suburb, located approximately 9 miles south of Manchester City Centre and 1.2 from Altrincham town centre. The village of Hale boasts a wide variety of amenities and is well known for its selection of artisan bars, restaurants and cafes.

The residential flat above the commercial premises is currently at the latter stages of completion (we are advised this will be completed prior to the auction date); please note, no member of Auction House has entered the residential arm of the premises and only that of the lower and ground floors which represent the commercial side.

Current sqft is 180.4 m2 / 1941.81 sqft - entire premises.

Current rateable value (1 April 2023 to present) £9,600 extracted from gov.uk website.

COMMERCIAL PREMISES LEASE DETAILS

Generating £36,000pa on a 3 year lease with 2 year break clause.

PLANNING DETAILS - Trafford Council Planning Portal

107013/FUL/22 | Erection of a single storey rear extension to provide ancillary office accommodation.

102021/FUL/20 | Change of use of the first and second floors of the property from office (Class E) to a 3 bed HMO (Class C4), provision of a replacement shop front and other minor alterations to the external façade of the building.

Tenure: Freehold

EPC Rating: New EPC Instructed & Awaited

Lot Type

Mixed Use

EPC Rating

EPC Awaited

Important Notice to Prospective Buyers

We draw your attention to the Special Conditions of Sale within the Legal Pack, referring to other charges in addition to the purchase price which may become payable. Such costs may include Search Fees, reimbursement of Sellers costs and Legal Fees, and Transfer Fees amongst others.

Buyers Premium

£1200 inc VAT payable on exchange of contracts.

Administration Charge

£1200 inc VAT payable on exchange of contracts.

Disbursements

Please see the legal pack for any disbursements listed that may become payable by the purchaser on completion.

Loading the bidding panel...

* Guide | £550,000
  • Unconditional (Immediate Exchange)

Call the team on 0345 646 2350 for more information

Disclaimer: The map preview provided above is for general guidance only and may not accurately reflect the exact location or surrounding buildings. Prospective buyers and interested parties are strongly advised to independently verify the precise location and surroundings before bidding.

Note

  1. MONEY LAUNDERING REGULATIONS: Intending purchasers will be asked to produce identification documentation at a later stage and we would ask for your co-operation in order that there will be no delay in agreeing the sale.
  2. General : While we endeavour to make our sales particulars fair, accurate and reliable, they are only a general guide to the property and, accordingly, if there is any point which is of particular importance to you, please contact the office and we will be pleased to check the position for you, especially if you are contemplating travelling some distance to view the property.
  3. Measurements: These approximate room sizes are only intended as general guidance. You must verify the dimensions carefully before ordering carpets or any built-in furniture.
  4. Services: Please note we have not tested the services or any of the equipment or appliances in this property, accordingly we strongly advise prospective buyers to commission their own survey or service reports before finalising their offer to purchase.
  5. THESE PARTICULARS ARE ISSUED IN GOOD FAITH BUT DO NOT CONSTITUTE REPRESENTATIONS OF FACT OR FORM PART OF ANY OFFER OR CONTRACT. THE MATTERS REFERRED TO IN THESE PARTICULARS SHOULD BE INDEPENDENTLY VERIFIED BY PROSPECTIVE BUYERS OR TENANTS. NEITHER AUCTION HOUSE NOR ANY OF ITS EMPLOYEES OR AGENTS HAS ANY AUTHORITY TO MAKE OR GIVE ANY REPRESENTATION OR WARRANTY WHATEVER IN RELATION TO THIS PROPERTY.