Auction House / Hull & East Yorkshire

  • For Sale By Unconditional Online Auction
  • Guide Price* : £90,000 - £100,000
  • Auction Ended 11/06/2024
  • Lot 9

15 Tennyson Avenue, Bridlington, East Riding of Yorkshire, YO15 2EU

For Sale via National Online Auction. Register to Bid!

Viewing Details

Strictly by appointment with the auctioneers on 0845 400 9900.

Location

It is situated on the north side of Bridlington, close to the town centre and leisure centre, and two minutes' walk to North Beach.

Description

This sizeable three-storey mid-terrace house has been converted into three flats (two self-contained), previously let and generating £12,600 gross income. Now vacant it provides an opportunity to investors for renovation and reletting at much higher levels than previously achieved or for conversion back to a single dwelling. The ground floor apartment provides self-contained two-bedroom accommodation that is gas centrally heated and mainly double-glazed. The first floor isn't centrally heated, single glazed and has a further two bedrooms, kitchen, living room, bathroom and WC, but isn't self-contained. The upper floor is self-contained and comprises two bedrooms, a living room, a kitchen and a bathroom, although at the time of listing, it had been inhabited by pigeons, the removal of which is ongoing and will be dealt with prior to completion. The property needs re-roofing and generally refurbishing.

Accommodation

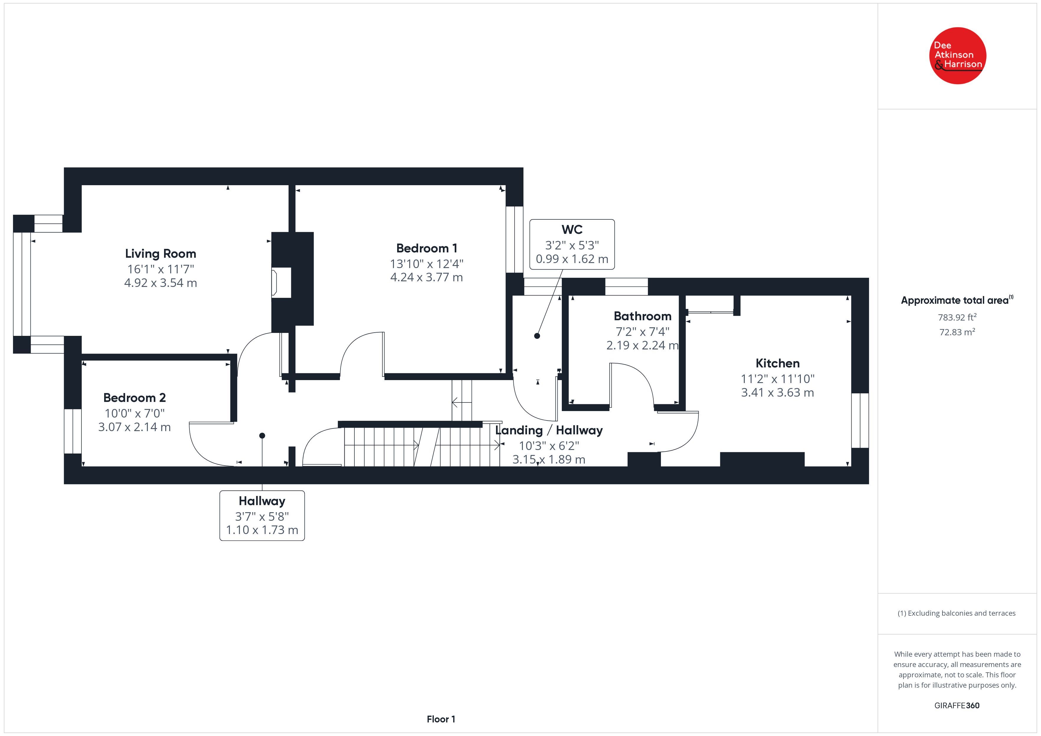
Ground Floor

Main Entrance Hall

Flat 1 Entrance, Bedroom One, Bedroom Two, Living Room, Kitchen, Bathroom. Gas fired central heating.

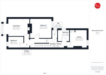
First Floor

Flat Two (not self-contained)

Living Room, Bedroom One, Bedroom Two, Kitchen, Bathroom, Separate WC.

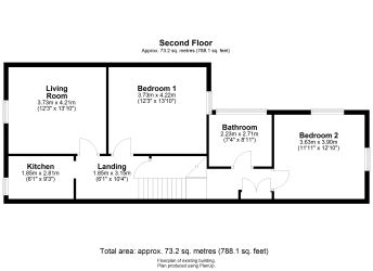
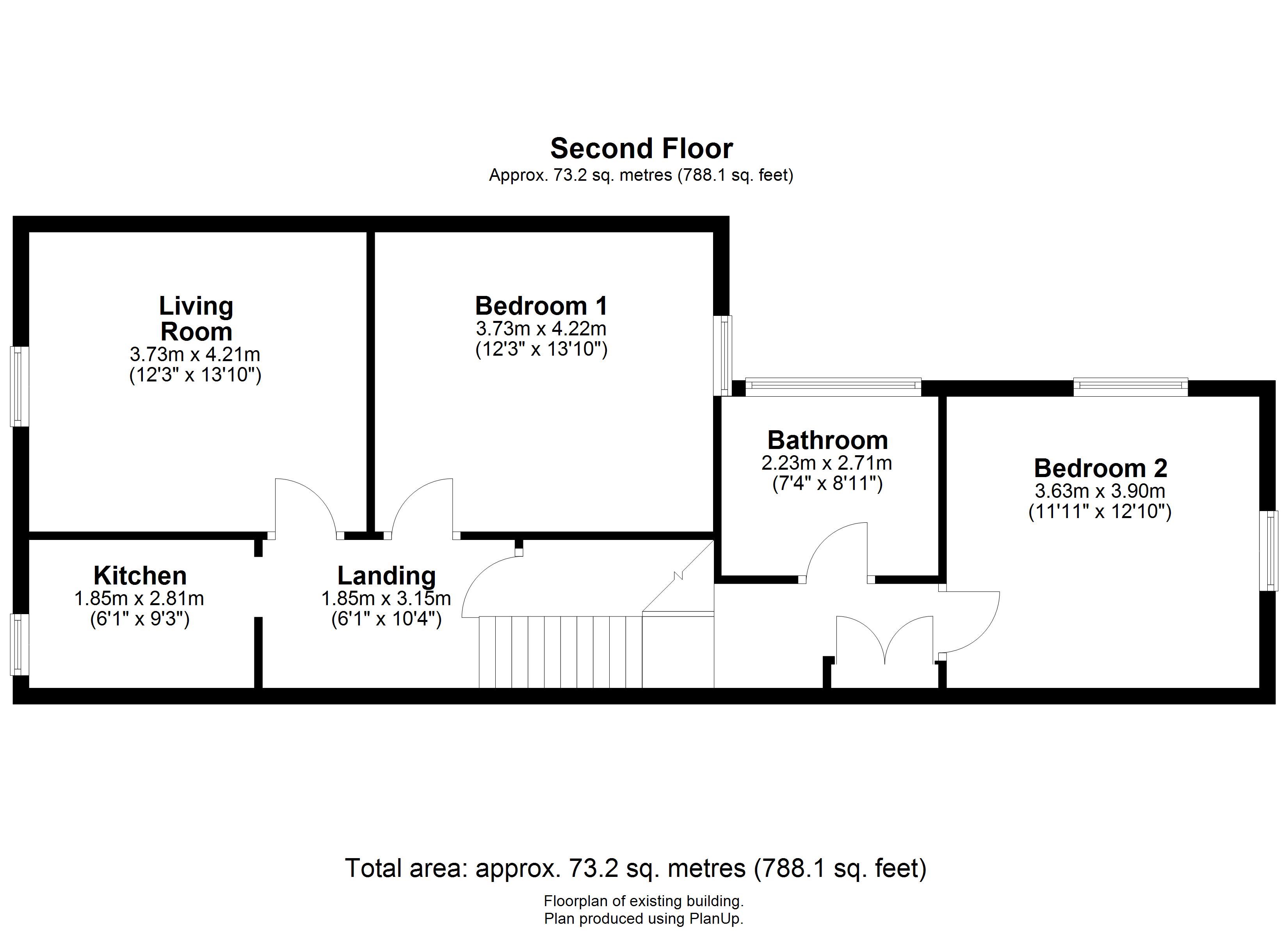
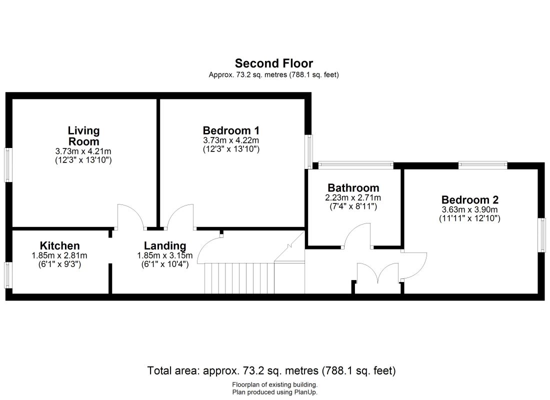
Second Floor

Landing, Living room, Kitchen, Bedroom one, Bathroom, Bedroom two.

Exterior

A forecourt hardstanding provides off street parking. To the rear is an enclosed yard.

Tenure

Tenure

Freehold

Council Tax Band

A

Lot Type

Residential for Improvement

Important Notice to Prospective Buyers

We draw your attention to the Special Conditions of Sale within the Legal Pack, referring to other charges in addition to the purchase price which may become payable. Such costs may include Search Fees, reimbursement of Sellers costs and Legal Fees, and Transfer Fees amongst others.

Buyers Premium

£900 (£750 plus VAT) in addition to the purchase price of the property.

Administration Charge

£900 (£750 plus VAT) subject to a minimum of 0.3% of the sale price including VAT in addition to the purchase price of the property.

Loading the bidding panel...

* Guide | £90,000 - £100,000
  • 6 Bedrooms
  • Tenure: Freehold
  • Unconditional (Immediate Exchange)

Call the team on 0845 400 9900 for more information

Disclaimer: The map preview provided above is for general guidance only and may not accurately reflect the exact location or surrounding buildings. Prospective buyers and interested parties are strongly advised to independently verify the precise location and surroundings before bidding.

Note

  1. MONEY LAUNDERING REGULATIONS: Intending purchasers will be asked to produce identification documentation at a later stage and we would ask for your co-operation in order that there will be no delay in agreeing the sale.
  2. General : While we endeavour to make our sales particulars fair, accurate and reliable, they are only a general guide to the property and, accordingly, if there is any point which is of particular importance to you, please contact the office and we will be pleased to check the position for you, especially if you are contemplating travelling some distance to view the property.
  3. Measurements: These approximate room sizes are only intended as general guidance. You must verify the dimensions carefully before ordering carpets or any built-in furniture.
  4. Services: Please note we have not tested the services or any of the equipment or appliances in this property, accordingly we strongly advise prospective buyers to commission their own survey or service reports before finalising their offer to purchase.
  5. THESE PARTICULARS ARE ISSUED IN GOOD FAITH BUT DO NOT CONSTITUTE REPRESENTATIONS OF FACT OR FORM PART OF ANY OFFER OR CONTRACT. THE MATTERS REFERRED TO IN THESE PARTICULARS SHOULD BE INDEPENDENTLY VERIFIED BY PROSPECTIVE BUYERS OR TENANTS. NEITHER AUCTION HOUSE NOR ANY OF ITS EMPLOYEES OR AGENTS HAS ANY AUTHORITY TO MAKE OR GIVE ANY REPRESENTATION OR WARRANTY WHATEVER IN RELATION TO THIS PROPERTY.