Auction House / Lincolnshire

  • For Sale By Unconditional Online Auction
  • Guide Price* : £60,000 - £80,000
  • Auction Ended 04/06/2024
  • Lot 2

50-52 Newmarket Street, Grimsby, South Humberside, DN32 7BP

FOR SALE BY UNCONDITIONAL ONLINE AUCTION! (IMMEDIATE EXCHANGE)
This property will be offered for sale by unconditional online auction 4th June 2024 with a *guide price of £30,000 - £50,000 (plus fees). To register to bid: auctionhouse.co.uk/lincolnshire

Description

Situation:
The properties are situate on Newmarket Street, Grimsby, a popular and central area just of Freeman Street in the heart of this historic Port town. There are a wide range of facilities and amenities within close proximity along with excellent access to the M180 road network.

Description:
A wonderful opportunity to acquire this high yielding investment opportunity, made up of 4 individually units, including 3 residential and one commercial. The property comprises one mid and one end of terrace unit, currently arranged as 3 self contained flats and a retail premises. Current rent passing is approximately £16,400 per annum with scope to increase subject to the necessary notices to bring in line with market rents. Valued for the open market by a local commercial agent at £125,000 - £135,000.


ACCOMMODATION
The properties comprise of:

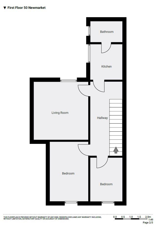
First Floor Flat – 50 Newmarket St

Living Room
Bedroom 1
Bedroom 2
Kitchen
Bathroom

First Floor Flat – 52 Newmarket St

Living Room
Bedroom
Kitchen
Bathroom

Ground Floor Flat – 50 Newmarket St

Living Room
Bedroom
Kitchen
Bathroom

Ground floor Retail Unit – 52 Newmarket St

Small outside courtyard area to the rear.

MATERIAL INFORMATION
Tenure:
The property is leasehold. All prospective bidders should satisfy themselves of the tenure by inspecting the legal pack.

Council Tax:
The property falls within North East Lincolnshire Council – BAND A

Possession:
Subject to exisitng tenancy agreements.

Viewing:
Strictly by appointment with Auction House.

Services:
Prospective purchasers are advised to make their own enquiries of the relevant statutory authorities. NB: Services, Apparatus and Equipment have not been tested by Auction House and therefore cannot be verified as being in working order. The buyer is advised to obtain verification from their Solicitor/Surveyor.

These particulars are believed to be correct but their accuracy is not guaranteed and they do not form any part of any contract. Information relating to Rating and Town and Country Planning matters has been obtained by verbal enquiry only. Prospective purchasers are advised to make their own enquiries of the appropriate Authority. All measurements, areas and distances are approximate only. Potential purchasers are advised to check them.

Council Tax Band

A

Lease Start Date

01/08/2006

Lease Duration

115 years (97 years unexpired)

Accommodation & Tenancy

Schedule of Rents as of 2 July 2024.

Property Floor Accommodation Tenancy Details Current Annual Rent
50 Newmarket Street, Grimsby Ground Floor Two Bedroom Flat £393.00pcm £4716.00
50 Newmarket Street, Grimsby First Floor One Bedroom Flat £375.00pcm £4500.00
52 Newmarket Street, Grimsby Ground Floor Retail Shop Unit £250.00pcm £3000.00
52 Newmarket Street, Grimsby First Floor One Bedroom Flat £350.00pcm £4200.00

EPC Rating

E / F

Important Notice to Prospective Buyers

We draw your attention to the Special Conditions of Sale within the Legal Pack, referring to other charges in addition to the purchase price which may become payable. Such costs may include Search Fees, reimbursement of Sellers costs and Legal Fees, and Transfer Fees amongst others.

Buyers Premium

Non-refundable £1,200 inc VAT payable on the fall of the virtual gavel.

Administration Charge

Non-refundable £1,200 inc VAT payable on the fall of the virtual gavel.

Disbursements

Please see the legal pack for any disbursements listed that may become payable by the purchaser on completion

Loading the bidding panel...

* Guide | £60,000 - £80,000
  • Unconditional (Immediate Exchange)

Call the team on 01427 616436 for more information

Disclaimer: The map preview provided above is for general guidance only and may not accurately reflect the exact location or surrounding buildings. Prospective buyers and interested parties are strongly advised to independently verify the precise location and surroundings before bidding.

Note

  1. MONEY LAUNDERING REGULATIONS: Intending purchasers will be asked to produce identification documentation at a later stage and we would ask for your co-operation in order that there will be no delay in agreeing the sale.
  2. General : While we endeavour to make our sales particulars fair, accurate and reliable, they are only a general guide to the property and, accordingly, if there is any point which is of particular importance to you, please contact the office and we will be pleased to check the position for you, especially if you are contemplating travelling some distance to view the property.
  3. Measurements: These approximate room sizes are only intended as general guidance. You must verify the dimensions carefully before ordering carpets or any built-in furniture.
  4. Services: Please note we have not tested the services or any of the equipment or appliances in this property, accordingly we strongly advise prospective buyers to commission their own survey or service reports before finalising their offer to purchase.
  5. THESE PARTICULARS ARE ISSUED IN GOOD FAITH BUT DO NOT CONSTITUTE REPRESENTATIONS OF FACT OR FORM PART OF ANY OFFER OR CONTRACT. THE MATTERS REFERRED TO IN THESE PARTICULARS SHOULD BE INDEPENDENTLY VERIFIED BY PROSPECTIVE BUYERS OR TENANTS. NEITHER AUCTION HOUSE NOR ANY OF ITS EMPLOYEES OR AGENTS HAS ANY AUTHORITY TO MAKE OR GIVE ANY REPRESENTATION OR WARRANTY WHATEVER IN RELATION TO THIS PROPERTY.