Auction House / South Yorkshire

  • For Sale By Unconditional Online Auction
  • Guide Price* : £10,000
  • Auction Ended 30/04/2024
  • Lot 30

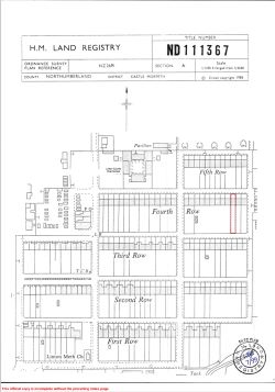
Fourth Row Linton Colliery, Morpeth, Northumberland, NE61 5SJ

25 Fourth Row, Linton Colliery • NE61 5SJ

please register to bid via our website - auctionhouse.co.uk/southyorkshire

Description

25 Fourth Row, Linton Colliery • NE61 5SJ

please register to bid via our website - auctionhouse.co.uk/southyorkshire

Description/Accommodation:
The property has not been internally inspected by the auctioneers to verify the exact accommodation however it is understood the property provides two-bedroom accommodation within this two floor mid-terrace house.

Tenancy:
The property is let on an assured shorthold tenancy from March 2023 at a current rent of £480 per Calendar month.

Rent Reserved:
£5,760 per annum.

Note:
This is an investment property. There will be no viewing appointments available and prospective purchasers are requested to not disturb the tenant. Viewing will be external only.

Tenure - See legals
Council Band - A

Tenure: See Legal Pack

EPC Rating: tbc

Important Notice to Prospective Buyers

We draw your attention to the Special Conditions of Sale within the Legal Pack, referring to other charges in addition to the purchase price which may become payable. Such costs may include Search Fees, reimbursement of Sellers costs and Legal Fees, and Transfer Fees amongst others.

Buyers Premium

£1200 INC VAT PAYABLE UPON THE FALL OF THE VIRTUAL GAVEL

Administration Charge

Administration Charge is a non-refundable £1,200 inc VAT payable on the fall of the virtual gavel.

Loading the bidding panel...

* Guide | £10,000
  • Terraced House
  • 2 Bedrooms
  • Unconditional (Immediate Exchange)

Call the team on 0114 223 0777 for more information

Disclaimer: The map preview provided above is for general guidance only and may not accurately reflect the exact location or surrounding buildings. Prospective buyers and interested parties are strongly advised to independently verify the precise location and surroundings before bidding.

Note

  1. MONEY LAUNDERING REGULATIONS: Intending purchasers will be asked to produce identification documentation at a later stage and we would ask for your co-operation in order that there will be no delay in agreeing the sale.
  2. General : While we endeavour to make our sales particulars fair, accurate and reliable, they are only a general guide to the property and, accordingly, if there is any point which is of particular importance to you, please contact the office and we will be pleased to check the position for you, especially if you are contemplating travelling some distance to view the property.
  3. Measurements: These approximate room sizes are only intended as general guidance. You must verify the dimensions carefully before ordering carpets or any built-in furniture.
  4. Services: Please note we have not tested the services or any of the equipment or appliances in this property, accordingly we strongly advise prospective buyers to commission their own survey or service reports before finalising their offer to purchase.
  5. THESE PARTICULARS ARE ISSUED IN GOOD FAITH BUT DO NOT CONSTITUTE REPRESENTATIONS OF FACT OR FORM PART OF ANY OFFER OR CONTRACT. THE MATTERS REFERRED TO IN THESE PARTICULARS SHOULD BE INDEPENDENTLY VERIFIED BY PROSPECTIVE BUYERS OR TENANTS. NEITHER AUCTION HOUSE NOR ANY OF ITS EMPLOYEES OR AGENTS HAS ANY AUTHORITY TO MAKE OR GIVE ANY REPRESENTATION OR WARRANTY WHATEVER IN RELATION TO THIS PROPERTY.