Auction House / Wales - Cardiff

  • For Sale By Unconditional Online Auction
  • Guide Price* : £115,000
  • Auction Ended 14/05/2024
  • Lot 40

Daronlea Bistre Avenue, Buckley, Clwyd, CH7 2JE

FOR SALE VIA ONLINE UNCONDITIONAL AUCTION. BIDDING OPENS MONDAY 13TH MAY & CLOSES TUESDAY 14TH MAY.

Viewing Details

OPEN HOUSE VIEWINGS
Wednesday 24th April 11:00-11:30
Friday 3rd May 12:00 - 12:30
Thursday 9th May 16:30 - 17:00

Description

FOR SALE VIA ONLINE UNCONDITIONAL AUCTION. BIDDING OPENS MONDAY 13TH MAY & CLOSES TUESDAY 15TH MAY.

All viewings arranged and conducted by Auction House - please contact a member of the team for further information.

For sale via unconditional online auction unless sold prior under auction conditions. Please contact the team if you wish to discuss.

A property that boasts incredible potential and a real blank canvass. this three bed semi-detached home is situated on Bistre Avenue, conveniently located close to the town centre of Buckley which offers a range of amenities.

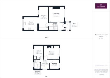
ROOM LIST - Measurements are for indicative purposes.

GROUND FLOOR
Entrance Hallway
Living Room 12'10 x 12'11 (3.93m x 3.95m)
Dining Area 7'10 x 16'7 (2.39m x 5.07m)
Kitchen 11'10 x 10'11 (3.62m x 3.33m)

FIRST FLOOR
Bedroom One 12'10 x 11'2 (3.93m x 3.41m)
Bedroom Two 7'10 x 11'1 (2.40m x 3.38m)
Bedroom Three 7'10 x 7'10 (2.40m x 2.40m)
Bathroom

REGISTER FOR LEGAL PACK AND BIDDING ON OUR WEBSITE. WWW. AUCTIONHOUSE.CO.UK

PLEASE NOTE No appliances have been tested by Auction House. Any measurements are approximate. We recommend any would be bidders conduct their own due diligence in good time prior to the auction taking place.

Tenure: Freehold

EPC Rating: E

Accommodation

3-Bedroom Semi Detached House

Tenure

Freehold

Council Tax Band

C

Lot Type

Residential for Improvement

EPC Rating

E

Important Notice to Prospective Buyers

We draw your attention to the Special Conditions of Sale within the Legal Pack, referring to other charges in addition to the purchase price which may become payable. Such costs may include Search Fees, reimbursement of Sellers costs and Legal Fees, and Transfer Fees amongst others.

Buyers Premium

£1200 inc VAT payable on exchange of contracts.

Administration Charge

£1200 inc VAT payable on exchange of contracts.

Disbursements

Please see the legal pack for any disbursements listed that may become payable by the purchaser on completion.

Loading the bidding panel...

* Guide | £115,000
  • 3 Bedrooms
  • Tenure: Freehold
  • Unconditional (Immediate Exchange)

Call the team on 02920 475 184 for more information

Disclaimer: The map preview provided above is for general guidance only and may not accurately reflect the exact location or surrounding buildings. Prospective buyers and interested parties are strongly advised to independently verify the precise location and surroundings before bidding.

Note

  1. MONEY LAUNDERING REGULATIONS: Intending purchasers will be asked to produce identification documentation at a later stage and we would ask for your co-operation in order that there will be no delay in agreeing the sale.
  2. General : While we endeavour to make our sales particulars fair, accurate and reliable, they are only a general guide to the property and, accordingly, if there is any point which is of particular importance to you, please contact the office and we will be pleased to check the position for you, especially if you are contemplating travelling some distance to view the property.
  3. Measurements: These approximate room sizes are only intended as general guidance. You must verify the dimensions carefully before ordering carpets or any built-in furniture.
  4. Services: Please note we have not tested the services or any of the equipment or appliances in this property, accordingly we strongly advise prospective buyers to commission their own survey or service reports before finalising their offer to purchase.
  5. THESE PARTICULARS ARE ISSUED IN GOOD FAITH BUT DO NOT CONSTITUTE REPRESENTATIONS OF FACT OR FORM PART OF ANY OFFER OR CONTRACT. THE MATTERS REFERRED TO IN THESE PARTICULARS SHOULD BE INDEPENDENTLY VERIFIED BY PROSPECTIVE BUYERS OR TENANTS. NEITHER AUCTION HOUSE NOR ANY OF ITS EMPLOYEES OR AGENTS HAS ANY AUTHORITY TO MAKE OR GIVE ANY REPRESENTATION OR WARRANTY WHATEVER IN RELATION TO THIS PROPERTY.