Auction House / East Anglia

  • For Sale By Unconditional Online Auction
  • Guide Price* : £180,000
  • Auction Ended 26/03/2024
  • Lot 4

The Cottage Bury Road, Diss, Suffolk, IP22 1PX

FOR SALE BY LIVESTREAM AUCTION ON WEDNESDAY 1 MAY 2024 AT 11:00AM
TO REGISTER FOR LEGAL PACKS AND BIDDING INSTRUCTIONS PLEASE VISIT OUR WEBSITE

Description

FOR SALE BY LIVESTREAM AUCTION ON WEDNESDAY 1 MAY 2024 AT 11:00AM
TO REGISTER FOR LEGAL PACKS AND BIDDING INSTRUCTIONS PLEASE VISIT OUR WEBSITE

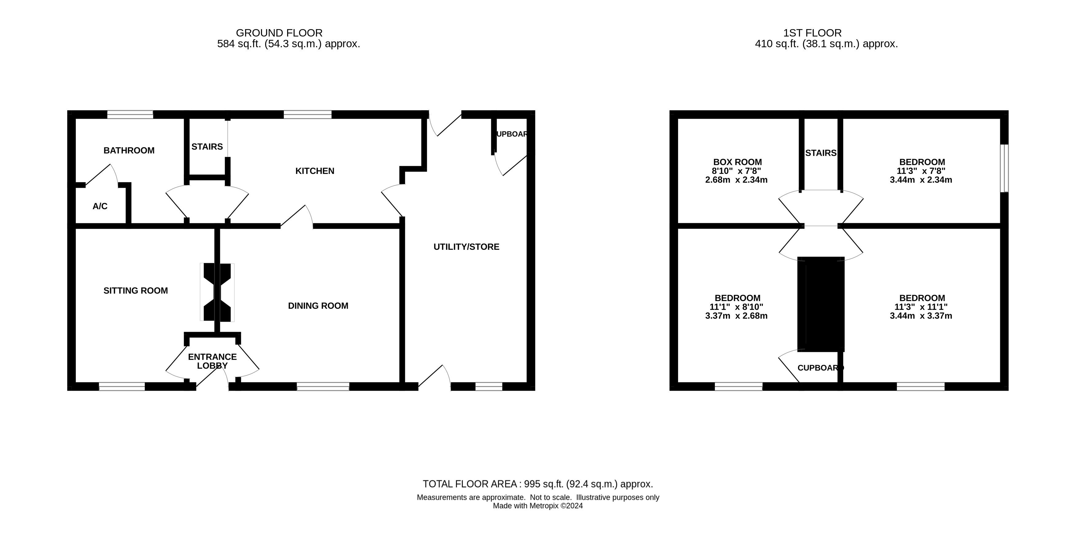
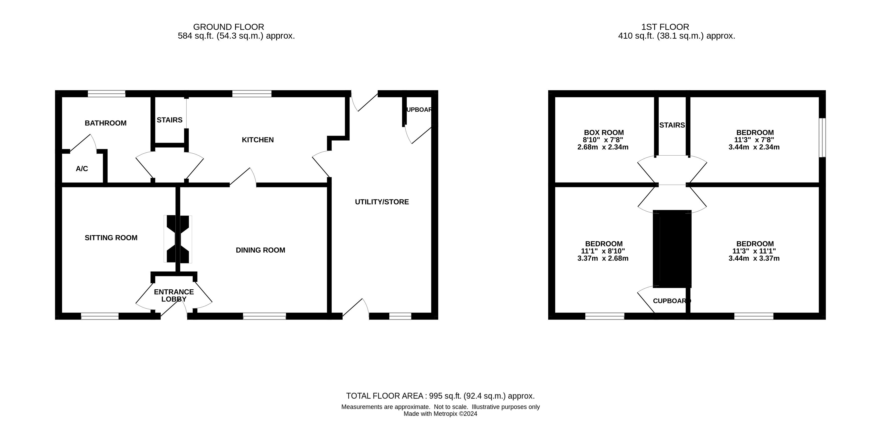
A detached cottage requiring further improvement overlooking a large green.

Situated in the village of Wortham some four miles from Diss is this detached cottage which would benefit from further improvement and is set back from the road in a pleasant position overlooking a large green.

The property offers two reception room, three bedroom accommodation with a good size enclosed rear garden and gives opportunity to add your own stamp and create a comfortable family home.

Priced competitively for the auction market and sure to generate good interest we strongly advise attending one of the scheduled Open Viewings.

Council Tax Band D
Viewing Open Viewing are being arranged.
BOOKING AN APPOINMENT IS ESSENTIAL.
Please contact our Ipswich office on 01473 558888 to confirm your appointment

Tenure: Freehold

EPC Rating: F

Lot Type

Residential

Important Notice to Prospective Buyers

We draw your attention to the Special Conditions of Sale within the Legal Pack, referring to other charges in addition to the purchase price which may become payable. Such costs may include Search Fees, reimbursement of Sellers costs and Legal Fees, and Transfer Fees amongst others.

Buyers Premium

£1,140 inc VAT payable on exchange of Contracts

Administration Charge

0.3% inc VAT of the purchase price, subject to a minimum of £1200 inc VAT, payable on exchange of Contracts.

Loading the bidding panel...

* Guide | £180,000
  • Detached House
  • 3 Bedrooms
  • Unconditional (Immediate Exchange)

Call the team on 01603 505 100 for more information

Disclaimer: The map preview provided above is for general guidance only and may not accurately reflect the exact location or surrounding buildings. Prospective buyers and interested parties are strongly advised to independently verify the precise location and surroundings before bidding.

Note

  1. MONEY LAUNDERING REGULATIONS: Intending purchasers will be asked to produce identification documentation at a later stage and we would ask for your co-operation in order that there will be no delay in agreeing the sale.
  2. General : While we endeavour to make our sales particulars fair, accurate and reliable, they are only a general guide to the property and, accordingly, if there is any point which is of particular importance to you, please contact the office and we will be pleased to check the position for you, especially if you are contemplating travelling some distance to view the property.
  3. Measurements: These approximate room sizes are only intended as general guidance. You must verify the dimensions carefully before ordering carpets or any built-in furniture.
  4. Services: Please note we have not tested the services or any of the equipment or appliances in this property, accordingly we strongly advise prospective buyers to commission their own survey or service reports before finalising their offer to purchase.
  5. THESE PARTICULARS ARE ISSUED IN GOOD FAITH BUT DO NOT CONSTITUTE REPRESENTATIONS OF FACT OR FORM PART OF ANY OFFER OR CONTRACT. THE MATTERS REFERRED TO IN THESE PARTICULARS SHOULD BE INDEPENDENTLY VERIFIED BY PROSPECTIVE BUYERS OR TENANTS. NEITHER AUCTION HOUSE NOR ANY OF ITS EMPLOYEES OR AGENTS HAS ANY AUTHORITY TO MAKE OR GIVE ANY REPRESENTATION OR WARRANTY WHATEVER IN RELATION TO THIS PROPERTY.