Auction House / South Yorkshire

  • For Sale By Unconditional Online Auction
  • Guide Price* : £99,000
  • Auction Ended 09/04/2024
  • Lot 18

31 Elmwood Crescent, Armthorpe, Doncaster, South Yorkshire, DN3 3AY

FOR SALE VIA NATIONAL ONLINE AUCTION ON MONDAY 8TH APRIL AT 1PM WITH AUCTION HOUSE SOUTH YORKSHIRE

Description

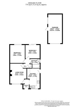
A 2 bedroom semi-detached bungalow, for sale with vacant possession, in Armthorpe.

OPEN HOUSE VIEWING DATES (no booking required):
THURSDAY 21st MARCH, 1pm TO 1:30pm
WEDNESDAY 27th MARCH, 11am TO 11:3am

The property briefly comprises of an Entrance Hallway, a Kitchen, a Living Room, a Family Bathroom, a spacious double Bedroom, and a 2nd double Bedroom with patio doors opening onto the rear garden.

The front of the property is paved and enclosed with at gate at the top of the driveway. There is a detached garage to the rear of the property, access by a canopy door at the front, and a pedestrian door to the side. The rear garden is enclosed and lawned.

The property is great for both owner occupiers, and landlord/investors. Recently the property has been let out to a family, at £650pcm.

Armthorpe is a large suburban village and civil parish, with a wide range of local facilities, The village has primary and secondary schooling, shops, post office, a leisure centre and variety of sporting and recreational facilities, as well as great commuter links with easy access to Junction 4 of the M18, in turn linking to the A1 motorway, M62 and M1.

Tenure: See Legal Pack

Council Tax Band

B

EPC Rating

D

Important Notice to Prospective Buyers

We draw your attention to the Special Conditions of Sale within the Legal Pack, referring to other charges in addition to the purchase price which may become payable. Such costs may include Search Fees, reimbursement of Sellers costs and Legal Fees, and Transfer Fees amongst others.

Buyers Premium

Buyer's Premium is £1,200 inc VAT, payable upon the fall of the virtual gavel.

Administration Charge

Administration Charge is a non-refundable £1,200 inc VAT payable on the fall of the virtual gavel.

Loading the bidding panel...

* Guide | £99,000
  • 2 Bedrooms
  • Unconditional (Immediate Exchange)

Call the team on 0114 223 0777 for more information

Disclaimer: The map preview provided above is for general guidance only and may not accurately reflect the exact location or surrounding buildings. Prospective buyers and interested parties are strongly advised to independently verify the precise location and surroundings before bidding.

Note

  1. MONEY LAUNDERING REGULATIONS: Intending purchasers will be asked to produce identification documentation at a later stage and we would ask for your co-operation in order that there will be no delay in agreeing the sale.
  2. General : While we endeavour to make our sales particulars fair, accurate and reliable, they are only a general guide to the property and, accordingly, if there is any point which is of particular importance to you, please contact the office and we will be pleased to check the position for you, especially if you are contemplating travelling some distance to view the property.
  3. Measurements: These approximate room sizes are only intended as general guidance. You must verify the dimensions carefully before ordering carpets or any built-in furniture.
  4. Services: Please note we have not tested the services or any of the equipment or appliances in this property, accordingly we strongly advise prospective buyers to commission their own survey or service reports before finalising their offer to purchase.
  5. THESE PARTICULARS ARE ISSUED IN GOOD FAITH BUT DO NOT CONSTITUTE REPRESENTATIONS OF FACT OR FORM PART OF ANY OFFER OR CONTRACT. THE MATTERS REFERRED TO IN THESE PARTICULARS SHOULD BE INDEPENDENTLY VERIFIED BY PROSPECTIVE BUYERS OR TENANTS. NEITHER AUCTION HOUSE NOR ANY OF ITS EMPLOYEES OR AGENTS HAS ANY AUTHORITY TO MAKE OR GIVE ANY REPRESENTATION OR WARRANTY WHATEVER IN RELATION TO THIS PROPERTY.