Auction House / Notts & Derby

  • For Sale By Unconditional Online Auction
  • Guide Price* : £45,000 - £55,000
  • Auction Ended 26/03/2024
  • Lot 19

21 Spencer Street, Mansfield, Nottinghamshire, NG18 5LR

***Guide Price - £45,000 - £55,000***

A two bedroomed terraced house situated within walking distance of Mansfield Town Centre and requiring full modernisation.

Description

***Guide Price - £45,000 - £55,000***

A two bedroomed terraced house situated within walking distance of Mansfield Town Centre and requiring full modernisation.

FOR SALE VIA NATIONAL ONLINE AUCTION. BIDDING OPENS ON MONDAY 25TH MARCH AT 1PM AND CLOSES TUESDAY 26TH MARCH AROUND 1PM. PLEASE REGISTER TO BID VIA THE AUCTION HOUSE WEBSITE!

Situated within walking distance of Mansfield Town Centre, this two bedroom terraced house requires renovation, but offers excellent potential as a buy-to-let or re-sell once renovation has been completed. The property is close to the Train Station, Bus Station and a good road network, as well as local shops and amenities. The accommodation comprises lounge, dining room and kitchen to the ground floor, with two bedrooms and bathroom to the first floor. Viewing is strongly advised to appreciate the potential on offer.

OPEN VIEWING DATES/TIMES:

TUESDAY 5TH MARCH - 12.00-12.30
MONDAY 11TH MARCH - 13.00-13.30
TUESDAY 19TH MARCH - 12.00-12.30
MONDAY 25TH MARCH - 13.00-13.30

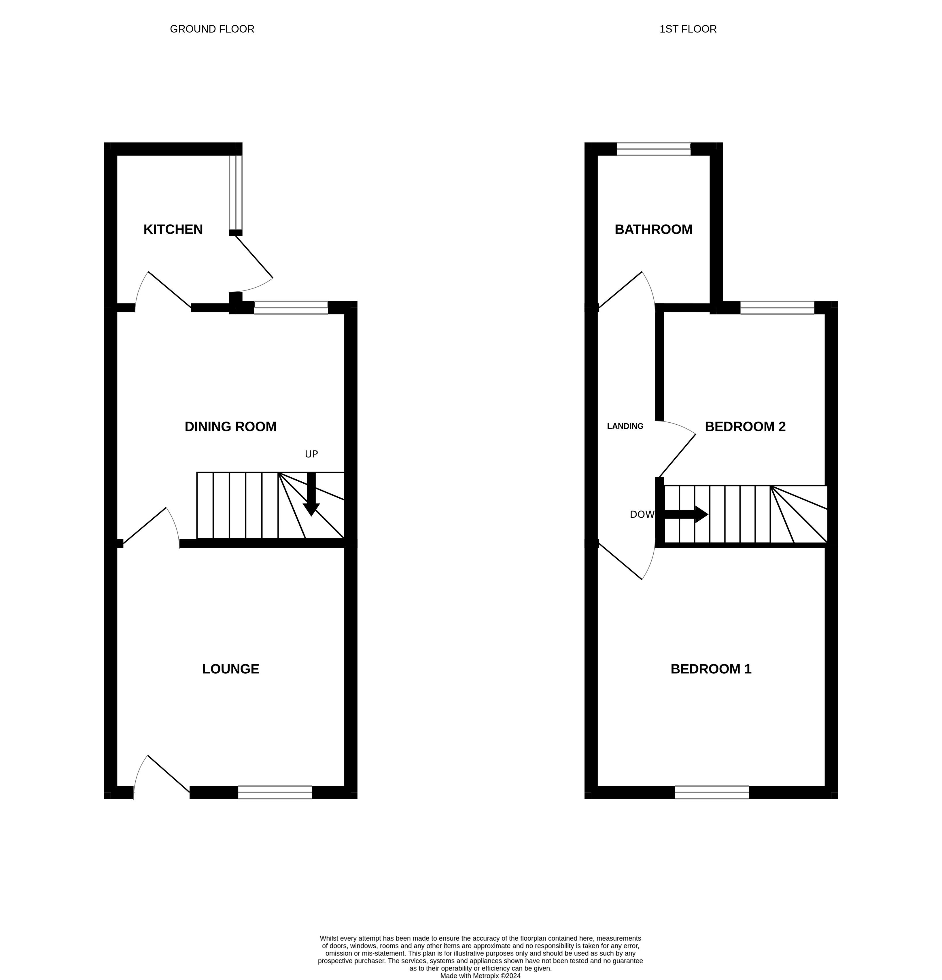
GROUND FLOOR
LOUNGE - 11'11 X 10'9
DINING ROOM - 11'10 X 11'10
KITCHEN - 7'11 X 6'3
FIRST FLOOR
BEDROOM 1 - 12' X 10'11
BEDROOM 2 - 12' X 8'10 MAX.
BATHROOM
OUTSIDE
GARDEN TO REAR.

Tenure: See Legal Pack

EPC Rating: E

Important Notice to Prospective Buyers

We draw your attention to the Special Conditions of Sale within the Legal Pack, referring to other charges in addition to the purchase price which may become payable. Such costs may include Search Fees, reimbursement of Sellers costs and Legal Fees, and Transfer Fees amongst others.

Buyers Premium

Buyers Premium is a non-refundable £1200 inc VAT payable on the fall of the virtual gavel.

Administration Charge

Administration Charge is a non-refundable £1,200 inc VAT payable on the fall of the virtual gavel.

Disbursements

Please see the legal pack for any disbursements listed that may become payable by the purchaser on completion.

Loading the bidding panel...

* Guide | £45,000 - £55,000
  • 2 Bedrooms
  • Unconditional (Immediate Exchange)

Call the team on 0115 777 8888 for more information

Disclaimer: The map preview provided above is for general guidance only and may not accurately reflect the exact location or surrounding buildings. Prospective buyers and interested parties are strongly advised to independently verify the precise location and surroundings before bidding.

Note

  1. MONEY LAUNDERING REGULATIONS: Intending purchasers will be asked to produce identification documentation at a later stage and we would ask for your co-operation in order that there will be no delay in agreeing the sale.
  2. General : While we endeavour to make our sales particulars fair, accurate and reliable, they are only a general guide to the property and, accordingly, if there is any point which is of particular importance to you, please contact the office and we will be pleased to check the position for you, especially if you are contemplating travelling some distance to view the property.
  3. Measurements: These approximate room sizes are only intended as general guidance. You must verify the dimensions carefully before ordering carpets or any built-in furniture.
  4. Services: Please note we have not tested the services or any of the equipment or appliances in this property, accordingly we strongly advise prospective buyers to commission their own survey or service reports before finalising their offer to purchase.
  5. THESE PARTICULARS ARE ISSUED IN GOOD FAITH BUT DO NOT CONSTITUTE REPRESENTATIONS OF FACT OR FORM PART OF ANY OFFER OR CONTRACT. THE MATTERS REFERRED TO IN THESE PARTICULARS SHOULD BE INDEPENDENTLY VERIFIED BY PROSPECTIVE BUYERS OR TENANTS. NEITHER AUCTION HOUSE NOR ANY OF ITS EMPLOYEES OR AGENTS HAS ANY AUTHORITY TO MAKE OR GIVE ANY REPRESENTATION OR WARRANTY WHATEVER IN RELATION TO THIS PROPERTY.