Auction House / South Yorkshire

  • For Sale By Unconditional Online Auction
  • Guide Price* : £50,000
  • Auction Ended 27/02/2024
  • Lot 50

41 Clinton Avenue, Blackpool, Lancashire, FY1 4AE

41 Clinton Avenue • FY1 4AE

please register to bid via our website - auctionhouse.co.uk/southyorkshire

Description

41 Clinton Avenue • FY1 4AE

please register to bid via our website - auctionhouse.co.uk/southyorkshire

OPEN HOUSE VIEWING - SATURDAY 24TH FEBRUARY AT 12PM UNTIL 12:30PM.

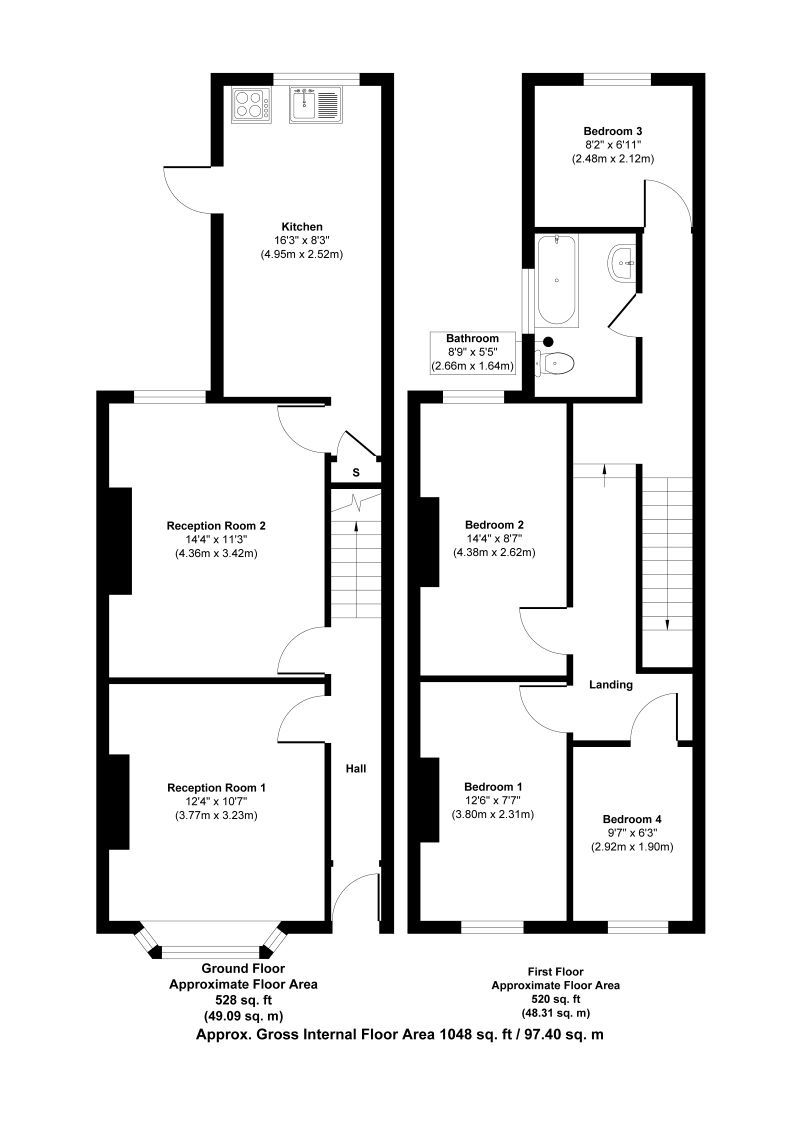
Four bedroom mid terrace house requiring a scheme of refurbishment

The property comprises a four bedroom mid terraced house which will appeal to investors looking to carry out a refurbishment project.

The property is situated in a convenient location approximately 0.7 miles from Blackpool North Station and close to a range of local amenities. Clinton Avenue can be accessed from Park Road (B5390) via Ashton Road.

Tenure - Freehold.

Council Tax Band - A.

Tenure: See Legal Pack

Important Notice to Prospective Buyers

We draw your attention to the Special Conditions of Sale within the Legal Pack, referring to other charges in addition to the purchase price which may become payable. Such costs may include Search Fees, reimbursement of Sellers costs and Legal Fees, and Transfer Fees amongst others.

Buyers Premium

£1200 inc vat payable upon the fall of the virtual gavel

Administration Charge

Administration Charge is a non-refundable £1,200 inc VAT payable on the fall of the virtual gavel.

Loading the bidding panel...

* Guide | £50,000
  • Terraced House
  • 4 Bedrooms
  • Unconditional (Immediate Exchange)

Call the team on 0114 223 0777 for more information

Disclaimer: The map preview provided above is for general guidance only and may not accurately reflect the exact location or surrounding buildings. Prospective buyers and interested parties are strongly advised to independently verify the precise location and surroundings before bidding.

Note

  1. MONEY LAUNDERING REGULATIONS: Intending purchasers will be asked to produce identification documentation at a later stage and we would ask for your co-operation in order that there will be no delay in agreeing the sale.
  2. General : While we endeavour to make our sales particulars fair, accurate and reliable, they are only a general guide to the property and, accordingly, if there is any point which is of particular importance to you, please contact the office and we will be pleased to check the position for you, especially if you are contemplating travelling some distance to view the property.
  3. Measurements: These approximate room sizes are only intended as general guidance. You must verify the dimensions carefully before ordering carpets or any built-in furniture.
  4. Services: Please note we have not tested the services or any of the equipment or appliances in this property, accordingly we strongly advise prospective buyers to commission their own survey or service reports before finalising their offer to purchase.
  5. THESE PARTICULARS ARE ISSUED IN GOOD FAITH BUT DO NOT CONSTITUTE REPRESENTATIONS OF FACT OR FORM PART OF ANY OFFER OR CONTRACT. THE MATTERS REFERRED TO IN THESE PARTICULARS SHOULD BE INDEPENDENTLY VERIFIED BY PROSPECTIVE BUYERS OR TENANTS. NEITHER AUCTION HOUSE NOR ANY OF ITS EMPLOYEES OR AGENTS HAS ANY AUTHORITY TO MAKE OR GIVE ANY REPRESENTATION OR WARRANTY WHATEVER IN RELATION TO THIS PROPERTY.