Auction House / Lincolnshire

  • For Sale By Unconditional Online Auction
  • Guide Price* : £15,000 - £20,000
  • Auction Ended 06/02/2024
  • Lot 17

293 Convamore Road, Grimsby, South Humberside, DN32 9HY

FOR SALE BY UNCONDITIONAL ONLINE AUCTION! (IMMEDIATE EXCHANGE)
This property will be offered for sale by auction 06 February 2024 with a *guide price of £15,000 - £20,000 (plus fees). To register to bid: auctionhouse.co.uk/lincolnshire

Description

Situation:
The property is situate on Convamore Road, Grimsby a popular and central area of this north east Lincolnshire market and port town. The town centre is within close proximity offering a wide range of facilities and amenities both retail and leisure and Grimsby itself is well positioned for access to the M180 road network.

Description:
A mid terrace house offered for sale in need of some cosmetic improvement but benefiting from some uPVC double glazing and versatile accommodation throughout. The property boasts well proportioned rooms and the scope to convert to an HMO subject to the necessary consents being obtained. This property will appear to those investors and owner occupiers alike being an ideal project and offering high potential yield. An internal viewing is a must to appreciate the scope of the accommodation on offer.

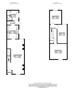
ACCOMMODATION
Ground Floor
Entrance Porch
Through Lounge/Dining Room
Kitchen
Rear Hallway
Family Bathroom

First Floor
Bedroom One
Bedroom Two
Bedroom Three

Outside:
Front and rear gardens
MATERIAL INFORMATION Tenure:
The property is believed to be freehold. All prospective bidders should satisfy themselves of the tenure by inspecting the legal pack.

Council Tax:
We have been advised that the property falls within North East Lincolnshire Council – BAND A

Possession:
Vacant possession will be given upon completion.

Viewing:
Strictly by appointment with Auction House.

Services:
Prospective purchasers are advised to make their own enquiries of the relevant statutory authorities. NB: Services, Apparatus and Equipment have not been tested by Auction House and therefore cannot be verified as being in working order. The buyer is advised to obtain verification from their Solicitor/Surveyor.

These particulars are believed to be correct but their accuracy is not guaranteed and they do not form any part of any contract. Information relating to Rating and Town and Country Planning matters has been obtained by verbal enquiry only. Prospective purchasers are advised to make their own enquiries of the appropriate Authority. All measurements, areas and distances are approximate only. Potential purchasers are advised to check them.

Council Tax Band

A

EPC Rating

G

Important Notice to Prospective Buyers

We draw your attention to the Special Conditions of Sale within the Legal Pack, referring to other charges in addition to the purchase price which may become payable. Such costs may include Search Fees, reimbursement of Sellers costs and Legal Fees, and Transfer Fees amongst others.

Administration Charge

Non-refundable £3,600 inc VAT payable on the fall of the virtual gavel.

Disbursements

Please see the legal pack for any disbursements listed that may become payable by the purchaser on completion

Loading the bidding panel...

* Guide | £15,000 - £20,000
  • 3 Bedrooms
  • Unconditional (Immediate Exchange)

Call the team on 01427 616436 for more information

Disclaimer: The map preview provided above is for general guidance only and may not accurately reflect the exact location or surrounding buildings. Prospective buyers and interested parties are strongly advised to independently verify the precise location and surroundings before bidding.

Note

  1. MONEY LAUNDERING REGULATIONS: Intending purchasers will be asked to produce identification documentation at a later stage and we would ask for your co-operation in order that there will be no delay in agreeing the sale.
  2. General : While we endeavour to make our sales particulars fair, accurate and reliable, they are only a general guide to the property and, accordingly, if there is any point which is of particular importance to you, please contact the office and we will be pleased to check the position for you, especially if you are contemplating travelling some distance to view the property.
  3. Measurements: These approximate room sizes are only intended as general guidance. You must verify the dimensions carefully before ordering carpets or any built-in furniture.
  4. Services: Please note we have not tested the services or any of the equipment or appliances in this property, accordingly we strongly advise prospective buyers to commission their own survey or service reports before finalising their offer to purchase.
  5. THESE PARTICULARS ARE ISSUED IN GOOD FAITH BUT DO NOT CONSTITUTE REPRESENTATIONS OF FACT OR FORM PART OF ANY OFFER OR CONTRACT. THE MATTERS REFERRED TO IN THESE PARTICULARS SHOULD BE INDEPENDENTLY VERIFIED BY PROSPECTIVE BUYERS OR TENANTS. NEITHER AUCTION HOUSE NOR ANY OF ITS EMPLOYEES OR AGENTS HAS ANY AUTHORITY TO MAKE OR GIVE ANY REPRESENTATION OR WARRANTY WHATEVER IN RELATION TO THIS PROPERTY.