Auction House / Lincolnshire

  • For Sale By Unconditional Online Auction
  • Guide Price* : £80,000 - £100,000
  • Auction Ended 30/01/2024
  • Lot 14

8 Victoria Street, Grimsby, South Humberside, DN31 1DP

FOR SALE BY UNCONDITIONAL ONLINE AUCTION! (IMMEDIATE EXCHANGE)
This property will be offered for sale by auction closing 30 January 2024 with a *guide price of £80,000 - £100,000 (plus fees). To register to bid: auctionhouse.co.uk/lincolnshire

Description

The town of Grimsby is located within North East Lincolnshire, the property is located on the southern side of the pedestrianised Victoria Street West, which is considered to be a prime retailing pitch within the town centre. Many national and regional occupiers are represented and the property is additionally well situated to benefit from close proximity to the Freshney Place shopping centre.

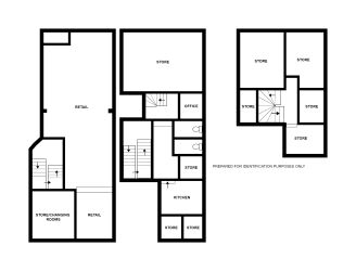
The property provides three storey, mid terraced retail premises comprising predominantly open plan retail accommodation with storage on the ground floor, ancillary office, kitchen and storage accommodation on the first floor and storage accommodation on the second floor. The property benefits from electrically operated roller shutters to the front and electric heating in part. The ground floor of the property is in good internal state, although the parts of the upper floors may require refurbishment for use.

Accommodation Ground Floor:
Retail - 60.2 sqm (648 sq ft)
Ancillary - 9.9 sqm (107 sq ft)

First Floor:
Storage - 26.4 sqm (284 sq ft)
Ancillary - 12.2 sqm (131 sq ft)

Second Floor:
Storage - 44.0 sqm (473 sq ft)
Material Information Tenure:
The property is believed to be freehold. All prospective bidders should satisfy themselves of the tenure by inspecting the legal pack.

Council Tax:
We have been advised that the property falls within North East Lincolnshire Council. Current rateable value (1 April 2023 to present) £17,500

Possession:
Vacant possession will be given upon completion.

Viewing:
Strictly by appointment with Auction House.

Services:
Prospective purchasers are advised to make their own enquiries of the relevant statutory authorities. NB: Services, Apparatus and Equipment have not been tested by Auction House and therefore cannot be verified as being in working order. The buyer is advised to obtain verification from their Solicitor/Surveyor.

These particulars are believed to be correct but their accuracy is not guaranteed and they do not form any part of any contract. Information relating to Rating and Town and Country Planning matters has been obtained by verbal enquiry only. Prospective purchasers are advised to make their own enquiries of the appropriate Authority. All measurements, areas and distances are approximate only. Potential purchasers are advised to check them.

EPC Rating

D

Important Notice to Prospective Buyers

We draw your attention to the Special Conditions of Sale within the Legal Pack, referring to other charges in addition to the purchase price which may become payable. Such costs may include Search Fees, reimbursement of Sellers costs and Legal Fees, and Transfer Fees amongst others.

Buyers Premium

Non-refundable £1,200 inc VAT payable on the fall of the virtual gavel.

Administration Charge

Non-refundable £1,200 inc VAT payable on the fall of the virtual gavel.

Disbursements

Please see the legal pack for any disbursements listed that may become payable by the purchaser on completion.

Loading the bidding panel...

* Guide | £80,000 - £100,000
  • Unconditional (Immediate Exchange)

Call the team on 01427 616436 for more information

Disclaimer: The map preview provided above is for general guidance only and may not accurately reflect the exact location or surrounding buildings. Prospective buyers and interested parties are strongly advised to independently verify the precise location and surroundings before bidding.

Note

  1. MONEY LAUNDERING REGULATIONS: Intending purchasers will be asked to produce identification documentation at a later stage and we would ask for your co-operation in order that there will be no delay in agreeing the sale.
  2. General : While we endeavour to make our sales particulars fair, accurate and reliable, they are only a general guide to the property and, accordingly, if there is any point which is of particular importance to you, please contact the office and we will be pleased to check the position for you, especially if you are contemplating travelling some distance to view the property.
  3. Measurements: These approximate room sizes are only intended as general guidance. You must verify the dimensions carefully before ordering carpets or any built-in furniture.
  4. Services: Please note we have not tested the services or any of the equipment or appliances in this property, accordingly we strongly advise prospective buyers to commission their own survey or service reports before finalising their offer to purchase.
  5. THESE PARTICULARS ARE ISSUED IN GOOD FAITH BUT DO NOT CONSTITUTE REPRESENTATIONS OF FACT OR FORM PART OF ANY OFFER OR CONTRACT. THE MATTERS REFERRED TO IN THESE PARTICULARS SHOULD BE INDEPENDENTLY VERIFIED BY PROSPECTIVE BUYERS OR TENANTS. NEITHER AUCTION HOUSE NOR ANY OF ITS EMPLOYEES OR AGENTS HAS ANY AUTHORITY TO MAKE OR GIVE ANY REPRESENTATION OR WARRANTY WHATEVER IN RELATION TO THIS PROPERTY.