Auction House / South Yorkshire

  • For Sale By Unconditional Online Auction
  • Guide Price* : £90,000
  • Auction Ended 14/11/2023
  • Lot 43

9 North Road Royston, Barnsley, South Yorkshire, S71 4DE

TERRACED HOUSE SPLIT INTO 4 X 1 BEDROOM FLATS - FOR SALE VIA NATIONAL ONLINE AUCTION ON MONDAY 6TH NOVEMBER AT 1PM WITH AUCTON HOUSE

Description

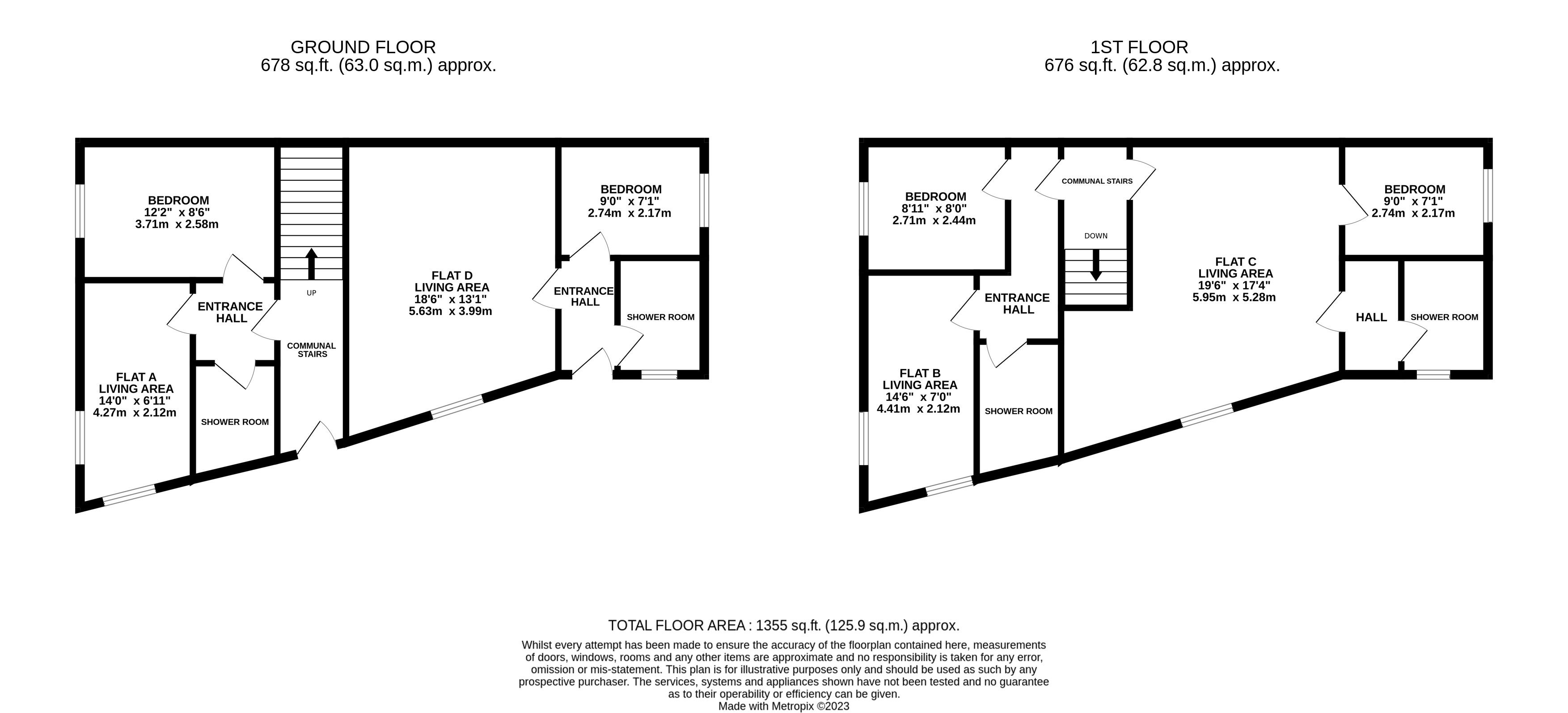
A vacant end-terrace property, currently split into 4 x 1 bedroom flats.

The property comprises of:

1 x ground floor 1 bedroom flat, with open plan living area with Kitchenette, a shower room and one bedroom, accessed by the communal Entrance Hallway.
1 x ground floor 1 bedroom flat, with open plan living area with Kitchenette, a shower room and one bedroom, with own entrance door, separate to the other flats.
2 x first floor 1 bedroom flats, with open plan living area with Kitchenette, a shower room and one bedroom., accessed by the communal Entrance Hallway.

We would expect each flat to let between £300pcm and £400pcm., with minimum combined yearly income expected at £15,000 P/A.

OPEN HOUSE VIEWING (no booking required):
Monday 30th Oct, 10am - 10:30am
Thursday 2nd Nov, 10am - 10:30am

Tenure: See Legal Pack

EPC Rating: F

Council Tax Band

A

EPC Rating

F

Important Notice to Prospective Buyers

We draw your attention to the Special Conditions of Sale within the Legal Pack, referring to other charges in addition to the purchase price which may become payable. Such costs may include Search Fees, reimbursement of Sellers costs and Legal Fees, and Transfer Fees amongst others.

Buyers Premium

Buyer's Premium is non-refundable £1,200 inc VAT payable on the fall of the virtual gavel

Administration Charge

Administration Charge is a non-refundable £1,200 inc VAT payable on the fall of the virtual gavel.

Loading the bidding panel...

* Guide | £90,000
  • 4 Bedrooms
  • Unconditional (Immediate Exchange)

Call the team on 0114 223 0777 for more information

Disclaimer: The map preview provided above is for general guidance only and may not accurately reflect the exact location or surrounding buildings. Prospective buyers and interested parties are strongly advised to independently verify the precise location and surroundings before bidding.

Note

  1. MONEY LAUNDERING REGULATIONS: Intending purchasers will be asked to produce identification documentation at a later stage and we would ask for your co-operation in order that there will be no delay in agreeing the sale.
  2. General : While we endeavour to make our sales particulars fair, accurate and reliable, they are only a general guide to the property and, accordingly, if there is any point which is of particular importance to you, please contact the office and we will be pleased to check the position for you, especially if you are contemplating travelling some distance to view the property.
  3. Measurements: These approximate room sizes are only intended as general guidance. You must verify the dimensions carefully before ordering carpets or any built-in furniture.
  4. Services: Please note we have not tested the services or any of the equipment or appliances in this property, accordingly we strongly advise prospective buyers to commission their own survey or service reports before finalising their offer to purchase.
  5. THESE PARTICULARS ARE ISSUED IN GOOD FAITH BUT DO NOT CONSTITUTE REPRESENTATIONS OF FACT OR FORM PART OF ANY OFFER OR CONTRACT. THE MATTERS REFERRED TO IN THESE PARTICULARS SHOULD BE INDEPENDENTLY VERIFIED BY PROSPECTIVE BUYERS OR TENANTS. NEITHER AUCTION HOUSE NOR ANY OF ITS EMPLOYEES OR AGENTS HAS ANY AUTHORITY TO MAKE OR GIVE ANY REPRESENTATION OR WARRANTY WHATEVER IN RELATION TO THIS PROPERTY.