Auction House / North West

  • For Sale By Unconditional Online Auction
  • Guide Price* : £139,000
  • Auction Ended 31/10/2023
  • Lot 15

13B High Street, Congleton, Cheshire, CW12 1BN

FOR SALE VIA NATIONAL ONLINE AUCTION. REGISTER TO BID!

Viewing Details

Friday 27th October 2023 - 1pm until 2pm

Description

National Online Auction - 30th to 31st October 2023

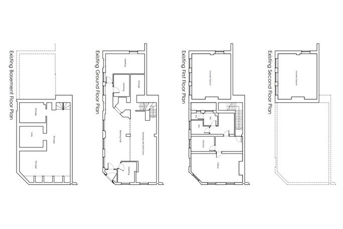
Former Bank With Planning To Develop In To HMO

Brought to you in partnership with Ardent Homes.

*******Viewing dates to be announced*******
Introducing an exceptional property development opportunity in Congleton, Cheshire!
Once an esteemed bank, this property has successfully obtained sought-after planning permission for a remarkable transformation into a contemporary and roomy 4-bedroom HMO, complete with en-suite bathrooms throughout, spread across three levels.

Set within this desirable location, this property presents an exclusive gateway into the thriving HMO market. For potential buyers, the option to team up with a seasoned construction partner and a skilled HMO management company is available if required. further information regarding these opportunities can be explored during the open day or obtained upon request.
This property enjoys the advantage of having received planning & listed building consent in August 2023. This consent is to create two small HMO’s. Listed building consent application number (22/1218C). Planning permission application number (22/1216C). This means that the path toward the transformation into a stunning 4-bedroom HMO has already been paved, saving you the time and effort typically required for obtaining such approvals. Seize the moment and step into a project that's ready to take shape, with the potential to reap rewards in both the short and long term.

As an added opportunity, please note that the adjoining property, 13a High Street, is also available for sale in the auction scheduled for the 19th of September 2023. For more information on this don't hesitate to reach out to us!

To provide you with a comprehensive overview, the vendor has thoughtfully compiled profit and cost summaries, a bank-commissioned commercial valuation, projected build costs, and meticulous comparable due diligence to substantiate the guide price. These details can be thoroughly discussed during the forthcoming open day or can be provided upon request, ensuring you have all the necessary information to make an informed decision.

Buyer are advised to carry out their own enquires.

We advise all parties to make themselves aware of the planning permission/ listed building consent and any subsequent conditions of the application prior to purchasing. All images & plans are not to scale and are for illustration purposes only.

Tenure: Freehold
Title number: CH406687

Finance is available on this lot. For a decision-in-principle visit togethermoney.com/amydip/

ANTI-MONEY LAUNDERING REGULATIONS
In accordance with Anti-Money Laundering Regulations, two forms of identification and confirmation of the source of funding will be required from the successful purchaser.

Every effort has been made to confirm the accuracy of the lot details including any defect in the title both with the vendor and their solicitor. Auction House will not be held responsible for any failure to disclose any such defects.

Any purchasers choosing to buy without viewing in person are doing so at their own risk and acknowledge that the auctioneer will not be held responsible for any issues that may arise due to them being unintentionally missed from the video or sales particulars.

Please refer to legal pack for additional fees and the Auction Information document for guidance prior to bidding.

Tenure: Freehold

Important Notice to Prospective Buyers

We draw your attention to the Special Conditions of Sale within the Legal Pack, referring to other charges in addition to the purchase price which may become payable. Such costs may include Search Fees, reimbursement of Sellers costs and Legal Fees, and Transfer Fees amongst others.

Administration Charge

Administration Charge - 1.98% inc VAT of the purchase price, subject to a minimum of £1980 inc VAT, payable on exchange of contracts.

Loading the bidding panel...

* Guide | £139,000
  • Unconditional (Immediate Exchange)

Call the team on 01772 772450 for more information

Disclaimer: The map preview provided above is for general guidance only and may not accurately reflect the exact location or surrounding buildings. Prospective buyers and interested parties are strongly advised to independently verify the precise location and surroundings before bidding.

Note

  1. MONEY LAUNDERING REGULATIONS: Intending purchasers will be asked to produce identification documentation at a later stage and we would ask for your co-operation in order that there will be no delay in agreeing the sale.
  2. General : While we endeavour to make our sales particulars fair, accurate and reliable, they are only a general guide to the property and, accordingly, if there is any point which is of particular importance to you, please contact the office and we will be pleased to check the position for you, especially if you are contemplating travelling some distance to view the property.
  3. Measurements: These approximate room sizes are only intended as general guidance. You must verify the dimensions carefully before ordering carpets or any built-in furniture.
  4. Services: Please note we have not tested the services or any of the equipment or appliances in this property, accordingly we strongly advise prospective buyers to commission their own survey or service reports before finalising their offer to purchase.
  5. THESE PARTICULARS ARE ISSUED IN GOOD FAITH BUT DO NOT CONSTITUTE REPRESENTATIONS OF FACT OR FORM PART OF ANY OFFER OR CONTRACT. THE MATTERS REFERRED TO IN THESE PARTICULARS SHOULD BE INDEPENDENTLY VERIFIED BY PROSPECTIVE BUYERS OR TENANTS. NEITHER AUCTION HOUSE NOR ANY OF ITS EMPLOYEES OR AGENTS HAS ANY AUTHORITY TO MAKE OR GIVE ANY REPRESENTATION OR WARRANTY WHATEVER IN RELATION TO THIS PROPERTY.