Auction House / London

  • For Sale By Unconditional Online Auction
  • Guide Price* : £50,000-£70,000
  • Auction Ended 17/10/2023
  • Lot 14

7 Briardale Road, Wallasey, Merseyside, CH44 7AU

FOR SALE VIA NATIONAL ONLINE AUCTION. REGISTER TO BID!
A Two Bedroom Mid Terrace House Subject to an Assured Shorthold Tenancy Producing £5,400 Per Annum

Location

The property is situated on a residential road close to local shops and amenities. The open spaces of Central Park are within easy reach. Transport links are provided by Hamilton Square rail station.

Description

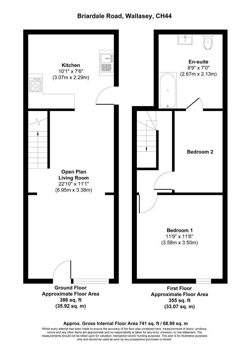
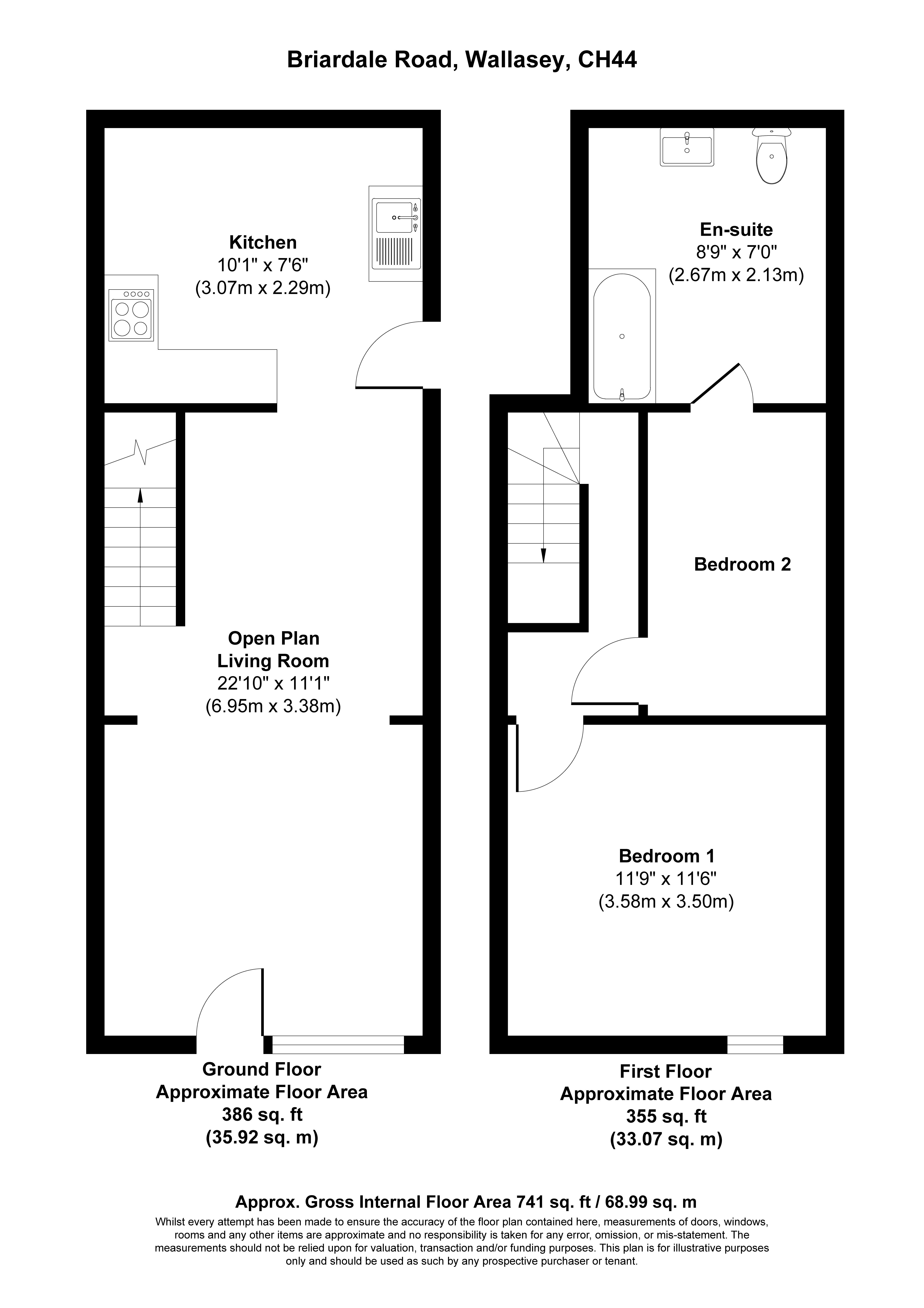
The property comprises a two bedroom mid terrace house arranged over ground and first floors

Accommodation

Ground Floor
Two Reception Rooms
Kitchen

First Floor
Two Bedrooms
Bathroom

Exterior

The property benefits from a rear yard.

Tenure

Freehold

Tenancy

The property is subject to an Assured Shorthold Tenancy for a term of 6 months commencing 2nd November 2020 at a rent of £450 per calendar month (holding over).

Important Notice to Prospective Buyers

We draw your attention to the Special Conditions of Sale within the Legal Pack, referring to other charges in addition to the purchase price which may become payable. Such costs may include Search Fees, reimbursement of Sellers costs and Legal Fees, and Transfer Fees amongst others.

Buyers Premium

Non-refundable £1,200 inc VAT payable on the fall of the virtual gavel.

Administration Charge

Administration Charge is a non-refundable £1,800 inc VAT payable on the fall of the virtual gavel.

Disbursements

Please see Legal Pack for any Disbursements.

Loading the bidding panel...

* Guide | £50,000-£70,000
  • 2 Bedrooms
  • Tenure: Freehold
  • Unconditional (Immediate Exchange)

Call the team on 020 7625 9007 for more information

Disclaimer: The map preview provided above is for general guidance only and may not accurately reflect the exact location or surrounding buildings. Prospective buyers and interested parties are strongly advised to independently verify the precise location and surroundings before bidding.

Note

  1. MONEY LAUNDERING REGULATIONS: Intending purchasers will be asked to produce identification documentation at a later stage and we would ask for your co-operation in order that there will be no delay in agreeing the sale.
  2. General : While we endeavour to make our sales particulars fair, accurate and reliable, they are only a general guide to the property and, accordingly, if there is any point which is of particular importance to you, please contact the office and we will be pleased to check the position for you, especially if you are contemplating travelling some distance to view the property.
  3. Measurements: These approximate room sizes are only intended as general guidance. You must verify the dimensions carefully before ordering carpets or any built-in furniture.
  4. Services: Please note we have not tested the services or any of the equipment or appliances in this property, accordingly we strongly advise prospective buyers to commission their own survey or service reports before finalising their offer to purchase.
  5. THESE PARTICULARS ARE ISSUED IN GOOD FAITH BUT DO NOT CONSTITUTE REPRESENTATIONS OF FACT OR FORM PART OF ANY OFFER OR CONTRACT. THE MATTERS REFERRED TO IN THESE PARTICULARS SHOULD BE INDEPENDENTLY VERIFIED BY PROSPECTIVE BUYERS OR TENANTS. NEITHER AUCTION HOUSE NOR ANY OF ITS EMPLOYEES OR AGENTS HAS ANY AUTHORITY TO MAKE OR GIVE ANY REPRESENTATION OR WARRANTY WHATEVER IN RELATION TO THIS PROPERTY.