Auction House / South West

  • For Sale By Unconditional Online Auction
  • Guide Price* : £15,000
  • Auction Ended 22/08/2023
  • Lot 6

Land to the side of 44 Belmont Close, Verwood, Dorset, BH31 6JR

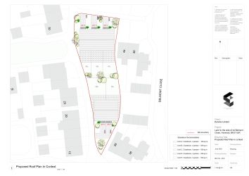
*Guide Price £15,000 (+ fees). For sale via our online national Auction on the 21/08/23. Land is situated on a residential road close to local shops and amenities. Plans have been drawn up but not submitted for the erection of 5 x three bedroom houses. A copy of the plans can be found within the legal pack.

Description

*Guide Price £15,000 (+ fees). For sale via our online national Auction on the 21/08/23. Land is situated on a residential road close to local shops and amenities. Plans have been drawn up but not submitted for the erection of 5 x three bedroom houses. A copy of the plans can be found within the legal pack.

A Vacant Plot of Land Measuring Approximately 0.26 Acres

LOCATION: The land is situated on a residential road close to local shops and amenities. The open spaces of Moors Valley Country Park are within easy reach. Transport links are provided by the A338 to the east.

AUCTIONEERS NOTE Plans have been drawn up but not submitted for the erection of 5 x three bedroom houses. A copy of the plans can be found within the legal pack.

NOTE:
The site area depicted within the plan in the auction particulars is for indicative purposes only. Additionally, any measurements stated may not be exact. Buyers should refer to the legal pack for the accurate site boundary and any consents or rights over the land. Purchasers are deemed to rely on their own enquiries with regard to precise measurements and any possible development potential or alternative uses for this plot of land.
VIEWINGS Viewings are available without appointment during all daylight hours, giving due consideration to neighbouring businesses, property and land
NOTICE TO BIDDER Please be aware that if your Bid is successful on Auction day the exchange of contracts will happen immediately after the Auction
FULL DETAILS Photographs, Dimensions, Floor Plans and Area Measurements (when available) are included within our full details online on our website. All published information is to aid identification of the property and is not necessarily to scale

Tenure: Freehold

Important Notice to Prospective Buyers

We draw your attention to the Special Conditions of Sale within the Legal Pack, referring to other charges in addition to the purchase price which may become payable. Such costs may include Search Fees, reimbursement of Sellers costs and Legal Fees, and Transfer Fees amongst others.

Buyers Premium

Buyers Premium £1,200 including VAT

Administration Charge

Buyers Administration Charge £1,200 including VAT

Loading the bidding panel...

* Guide | £15,000
  • Unconditional (Immediate Exchange)

Call the team on 01752 474200 for more information

Disclaimer: The map preview provided above is for general guidance only and may not accurately reflect the exact location or surrounding buildings. Prospective buyers and interested parties are strongly advised to independently verify the precise location and surroundings before bidding.

Note

  1. MONEY LAUNDERING REGULATIONS: Intending purchasers will be asked to produce identification documentation at a later stage and we would ask for your co-operation in order that there will be no delay in agreeing the sale.
  2. General : While we endeavour to make our sales particulars fair, accurate and reliable, they are only a general guide to the property and, accordingly, if there is any point which is of particular importance to you, please contact the office and we will be pleased to check the position for you, especially if you are contemplating travelling some distance to view the property.
  3. Measurements: These approximate room sizes are only intended as general guidance. You must verify the dimensions carefully before ordering carpets or any built-in furniture.
  4. Services: Please note we have not tested the services or any of the equipment or appliances in this property, accordingly we strongly advise prospective buyers to commission their own survey or service reports before finalising their offer to purchase.
  5. THESE PARTICULARS ARE ISSUED IN GOOD FAITH BUT DO NOT CONSTITUTE REPRESENTATIONS OF FACT OR FORM PART OF ANY OFFER OR CONTRACT. THE MATTERS REFERRED TO IN THESE PARTICULARS SHOULD BE INDEPENDENTLY VERIFIED BY PROSPECTIVE BUYERS OR TENANTS. NEITHER AUCTION HOUSE NOR ANY OF ITS EMPLOYEES OR AGENTS HAS ANY AUTHORITY TO MAKE OR GIVE ANY REPRESENTATION OR WARRANTY WHATEVER IN RELATION TO THIS PROPERTY.